Operating instructions

3.3.3 Panel-mounted instrument
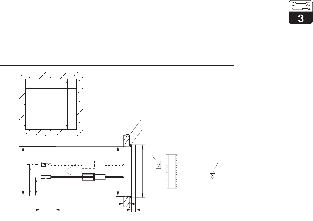
The device is attached using the supplied tensioning screws (see Fig. 3.9).
The required overall installation depth is approx. 165 mm.
MONT9.CDR
92
+0.5
92
+0,5
90
57
33
approx.
25
max. 45
96
92
1
2
3
139
6
3
3
Fig. 3.9
Attachment of panel-
mounted instrument
1 Wall of control
cabinet
2 Gasket
3 Tensioning screws
PM253E03.CHP
Liquisys M CPM 223 / 253 Installation
Endress+Hauser 11










