Specifications

2-22
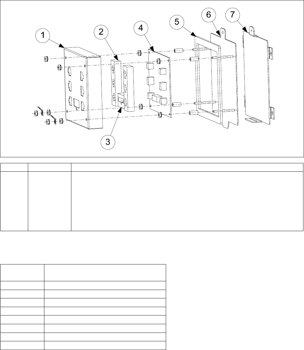
2.5.2.3 AIF Board Assembly
ITEM PART # COMPONENT
1 824-1891 Cover, AIF Board
2 816-0748 Gasket, AIF Board
3 816-0749 Gasket, Computer Board
4 106-9608SP Board, AIF
5 816-0769 Seal, AIF Board
6 106-8591 Assembly, AIF Box
7 220-3697 Mount, AIF Box
2.5.2.4 LOV PCB Board Matrix
CURRENT
PART #
COMPONENT
106-9609SP Board, MIB PCB
106-9246 Assembly, MIB Board w/ metal frame
106-9642 Assembly, MIB with cover and back
106-9608SP Board, AIF Board PCB
106-9257 Assembly, AIF Board w/ metal frame
106-9610SP Board, ATO PCB
106-9260 Assembly, ATO Board Box 120V
106-9261SP Assembly, ATO Board Box 208-240V
106-9257 AIF Board Assembly