Specifications
Manuals
Brands
Autostart Manuals
Automotive
AS-6460i TW-FM
51
52
53
54
55
56
57
58
59
60
1-45
1.18.5
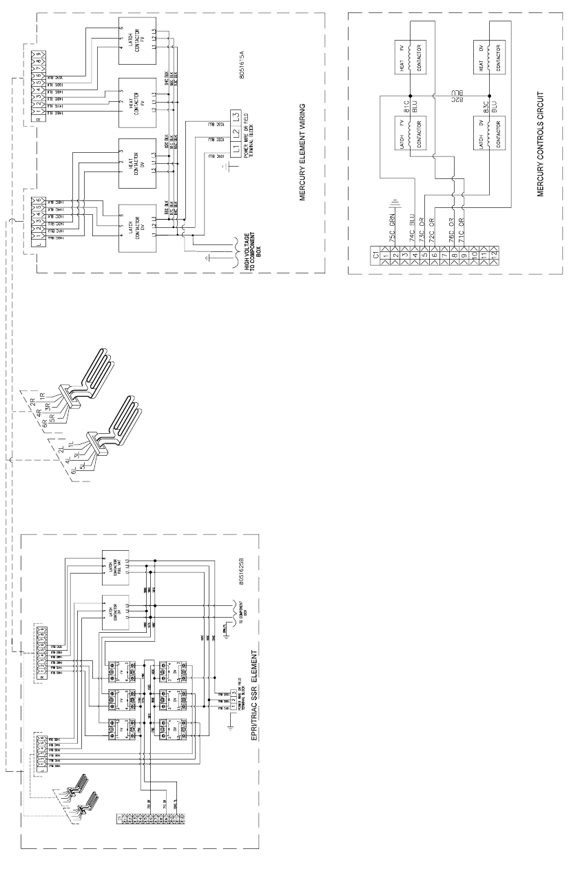
Contactor Box – Delta Configuration
1
...
...
50
51
52
53
54
...
...
92