Specifications
Manuals
Brands
Autostart Manuals
Automotive
AS-6460i TW-FM
31
32
33
34
35
36
37
38
39
40
1-24
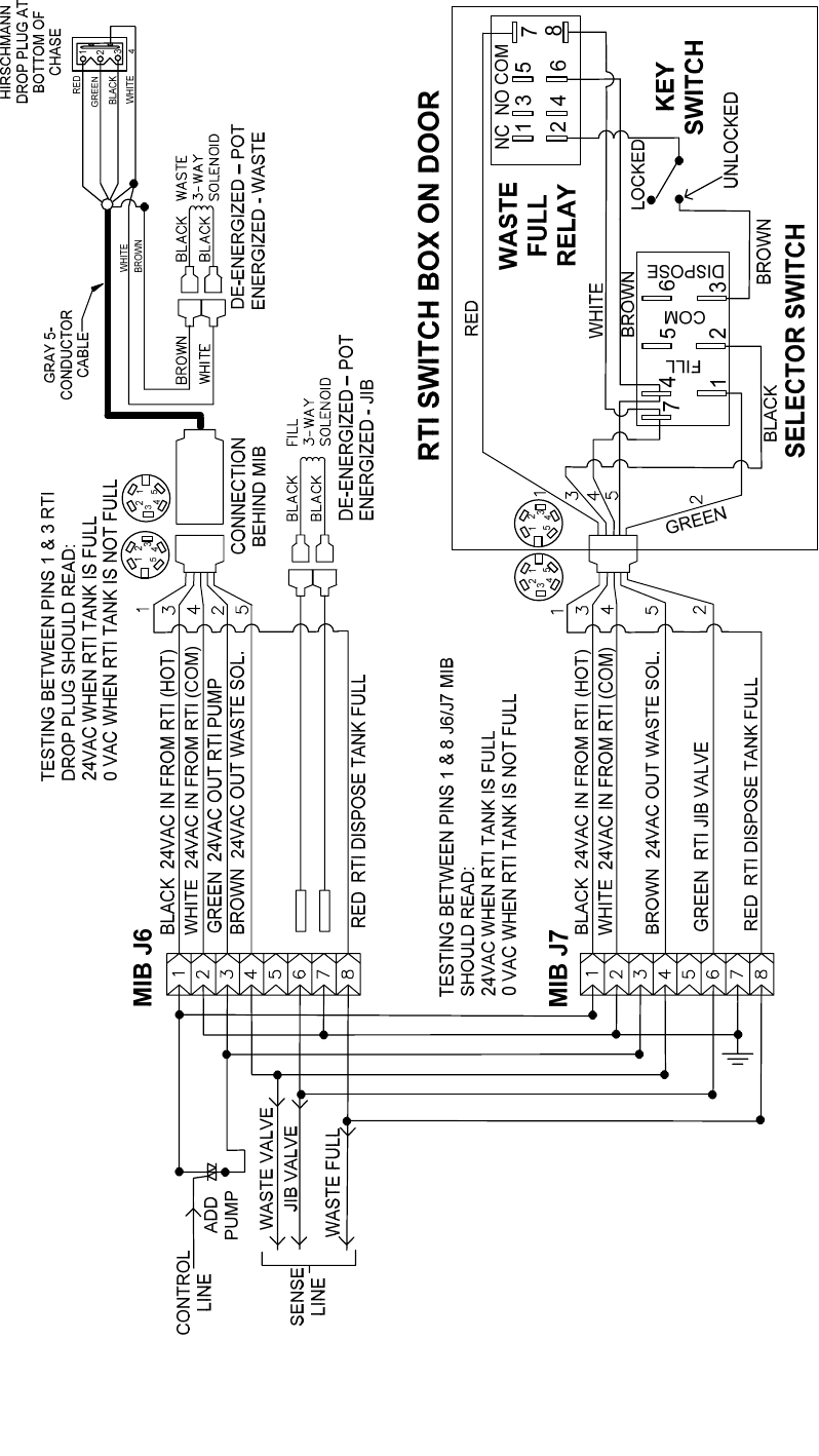
1.12.2 RTI LOV™ Wiring with RTI Switchbox
1
...
...
29
30
31
32
33
...
...
92