User's Manual

18
LIAIRF02-02
Cycle de vie de la radiocommande
AUTEC - Série Air
5 Cycle de vie de la radiocommande
An de garantir une utilisation sécurisée et durable d'une radiocommande industrielle, suivre
attentivement les indications relatives à chaque phase de vie du produit.
5.1 Transport et stockage
Une radiocommande doit toujours être transportée et conservée dans son
emballage jusqu'à ce qu'elle soit installée sur la machine.
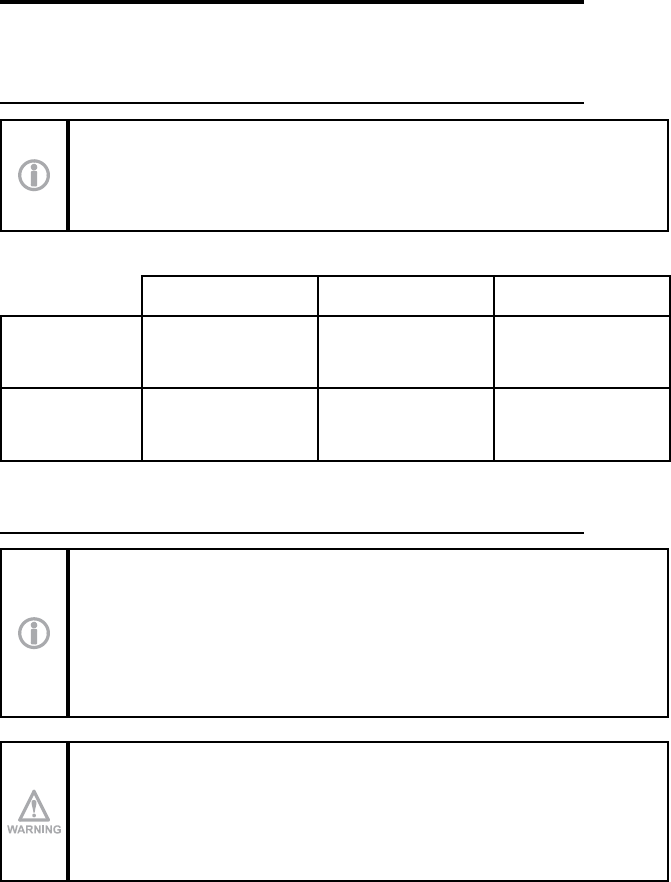
Les conditions ambiantes de transport et de stockage son reportées dans le tableau suivant :
Température Humidité relative Pression de l'air
Transport
Classe 2K4
de -40°C à +70°C
(de -40°F à +158°F)
Classe 2K4
95%
Classe 2K4
de 70kPa à 106kPa
Stockage
Classe 1K5
de -40°C à +70°C
(de -40°F à +158°F)
Classe 1K3
de 5% à 95%
Classe 1K5
de 70kPa à 106kPa
5.2 Installation
L’installation et la réception de la radiocommande doivent exclusivement être
exécutées par un personnel qualié possédant les connaissances techniques
nécessaires à l'accomplissement de ces opérations et habilité conformément
aux dispositions du pays où le montage est réalisé.
Seule une installation correcte peut garantir une utilisation sécurisée de la
radiocommande.
Pour une installation correcte, toujours respecter les indications fournies
sur la che technique.
Pour les instructions et les indications relatives à l'installation, s'adresser
au constructeur de la machine ou au décideur de l'installation de la
radiocommande.