Design Guide

askona.com/specs
|
17
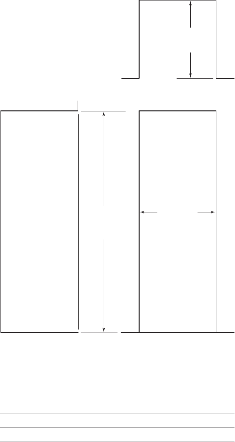
Built In Opening
STACKED INSTALLATION
D
OPENING
DEPTH
TOP VIEW
SIDE VIEW FRONT VIEW
68"
(1727)
OPENING
HEIGHT
24
1
/
2
"
(622)
OPENING WIDTH
NOTE: Dimensions provide minimum reveals.
ASKO WASHERS | DRYERS
OPENING DEPTH
D
W6424 and T754(C) 24
3
/8" (619)
W8844XL and T884XL(HP) 29
7
/8" (759)
Planning Information
If a washer or dryer is installed in a closet or an enclosure
with a door, the door must be vented, louvered or left open
during operation. Insufcient ventilation will signicantly
reduce performance.










