Design Guide

6
|
Asko Customer Care 800.222.7820
ASKO DISHWASHERS
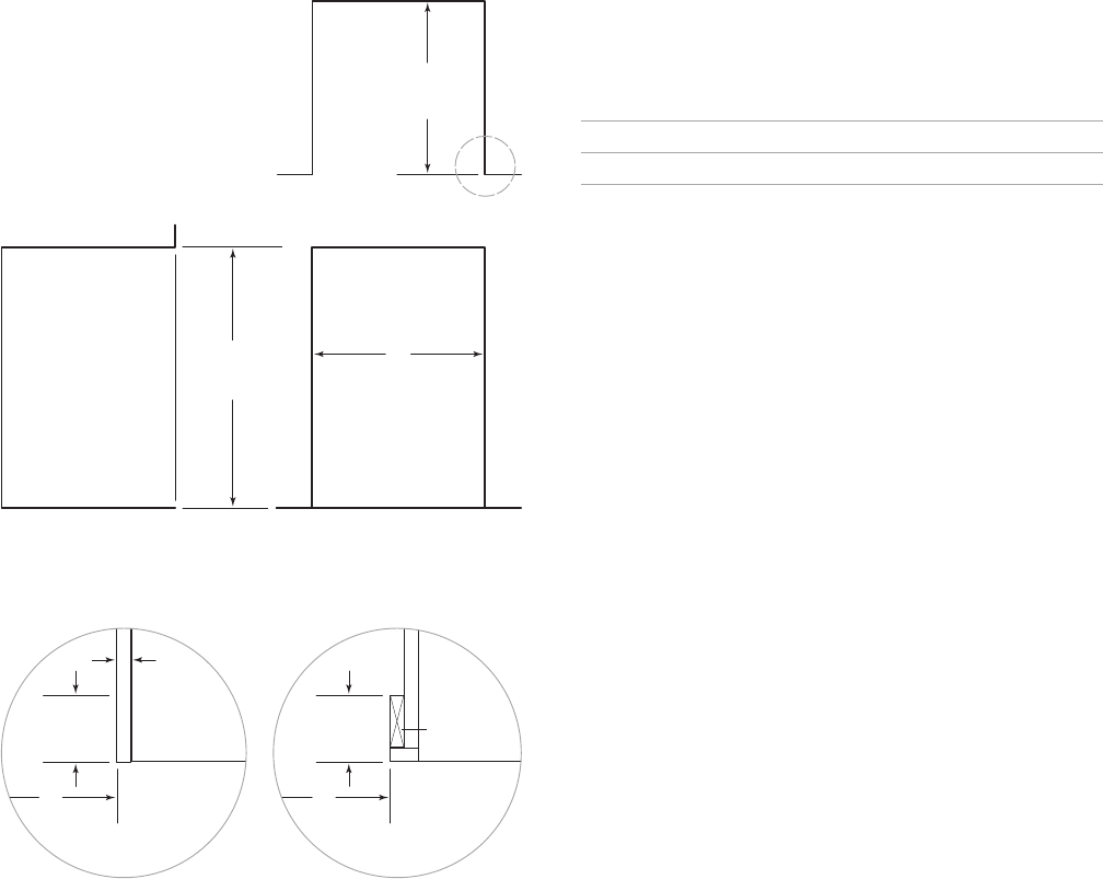
W
OPENING WIDTH
H
OPENING
HEIGHT
D
OPENING
DEPTH
TOP VIEW
SIDE
VIEW FRONT VIEW
NOTE:
3
1
/2" (89) finished returns will be visible and should be finished to match cabinetry.
3
1
/2" (89)
FINISHED
RETURN
FRAMELESS CABINETRY
3
/4"
(19)
TYPICAL
3
1
/2" (89)
FINISHED
RETURN
FILLER
FRAMED CABINETRY
W W
Opening Dimensions
DISHWASHERS IMPORTANT NOTE: All indoor models can accommodate
varying opening widths, however, 24"
(610) and 23
5
/8"
(60 cm) are the two most common. A 23
5
/8" (60 cm) opening
will provide minimum reveals.
OPENING
W H D
Indoor Model 23
5
/8" (600) 34
1
/2" (876) 24" (610)
Outdoor Model 24
7
/8" (632) 35
1
/2" (902) 25
1
/4" (641)
A minimum 3
1
/2" (89) nished return is required on all sides
of the opening. Framed cabinets will require additional
nished ller material behind the face frame for a proper
installation. Refer to the illustration.
Indoor models include top and side trim to accommodate
varying opening dimensions. Top and side trim can be
removed to achieve minimum reveals.
For ADA installations and height restricted openings, all
indoor, non-XXL models can be installed in a 32
1
/4" (819)
opening by removing top trim and lowering side trim.










