Instructions / Assembly

14
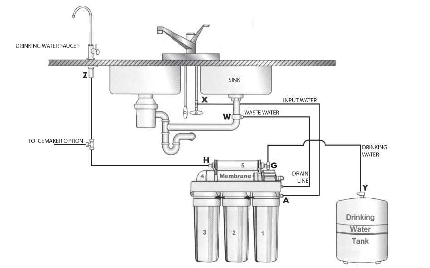
Fig. 11A
Details on Tubing Connections:
To ensure a smooth and correct installation, please connect the water lines following the se-
quence and order outlined below. Refer to Fig.11 & 11A for proper point locations.
1. Point Z Faucet connection:
Tubing color: Clear tubing. Connect the CLEAR tubing to the base of the RO faucet.
Fitting type: Quick Connect Fitting. Simply push Clear tubing into Quick Connect fitting. No Insert,
Sleeve or Nut needed here. (Attach threaded end of faucet adapter to the faucet metal
stem. No teflon tape needed here)
2. Point X Feed water connection:
Tubing color: Red tubing. Connect the RED tubing to the Feed Water Needle Valve.
Fitting type: Metal compression nut fitting. See Fig.1B on page 4. Use plastic sleeve.
Add “insert” to tubing. No teflon tape here. Tighten nut with wrench.
Tips! If Point X leaks after you have tightened the brass nut, check to make sure you did put the
plastic “insert and sleeve” onto the tubing. If the insert is already in place, then try
applying Teflon tape from the threaded metal stud all the way to the plastic tubing, wrap
the whole connection with 8-10 rounds of Teflon tape. Smooth out the tape on the
threaded part with your fingers. Tighten brass nut again. This should stop the leak.
If the plastic sleeve is damaged, you can use the metal sleeve, but you need to apply
Teflon tape as described above, this should stop the leak.










