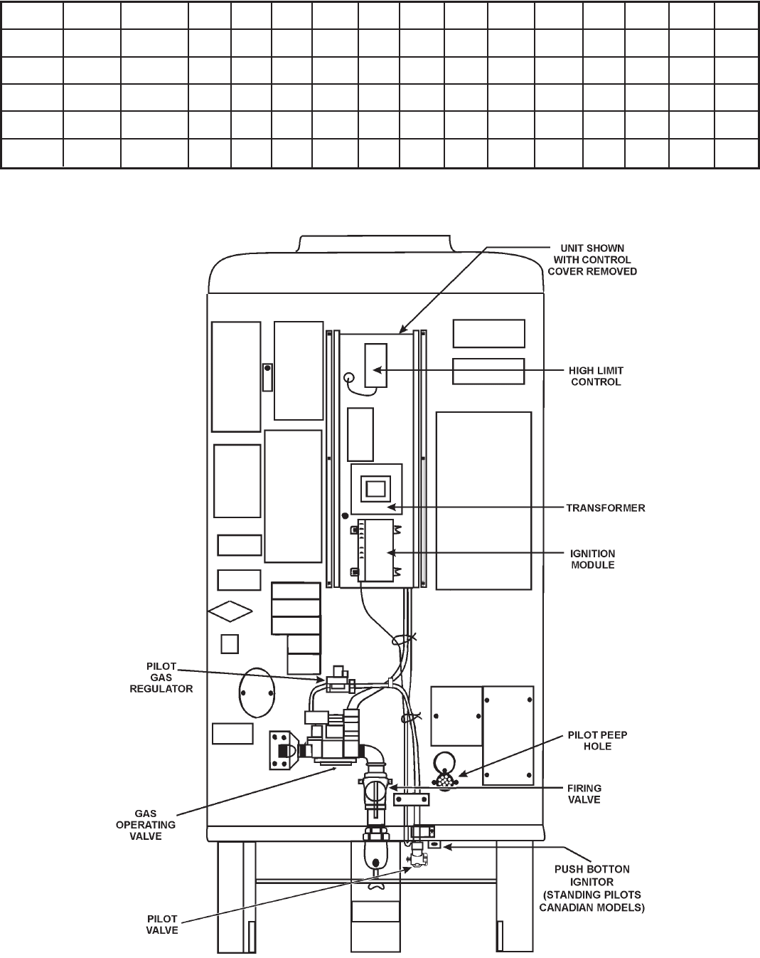
User Guide

33
33
3
TABLE 3, RECOVERY CAPACITIES - CANADIAN MODELS ONLY
Input Temp. (C) 11 17 22 26 33 39 44 50 56 61 67 72 78
Model (Btu/Hr.) Rise (F) 20 30 40 50 60 70 80 90 100 110 120 130 140
HW-300 300,000 LPH 5,505 3,670 2,753 2,202 1,835 1,573 1,376 1,223 1,001 1,001 918 847 786
GPH 1,455 970 727 582 485 416 364 323 291 264 242 224 208
HW-399 399,000 LPH 7,322 4,882 3,661 2,929 2,441 2,092 1,831 1,627 1,464 1,331 1,220 1,127 1,046
GPH 1,935 1,290 967 774 645 553 484 430 387 352 322 298 276
HW-420 420,000 LPH 7,708 5,138 3,854 3,083 2,569 2,202 1,927 1,713 1,542 1,401 1,285 1,186 1,101
GPH 2,036 1,358 1,018 815 679 582 509 453 407 370 339 313 291
HW-520 520,000 LPH 9,543 6,362 4,771 3,817 3,181 2,727 2,386 2,121 1,909 1,735 1,590 1,468 1,363
GPH 2,521 1,681 1,261 1,008 840 720 630 560 504 458 420 388 360
HW-610 610,000 LPH 11,194 7,463 5,597 4,478 3,731 3,198 2,799 2,488 2,239 2,035 1,866 1,722 1,599
GPH 2,958 1,972 1,479 1,183 986 845 739 657 592 538 493 455 423










