User Guide

4242
4242
42
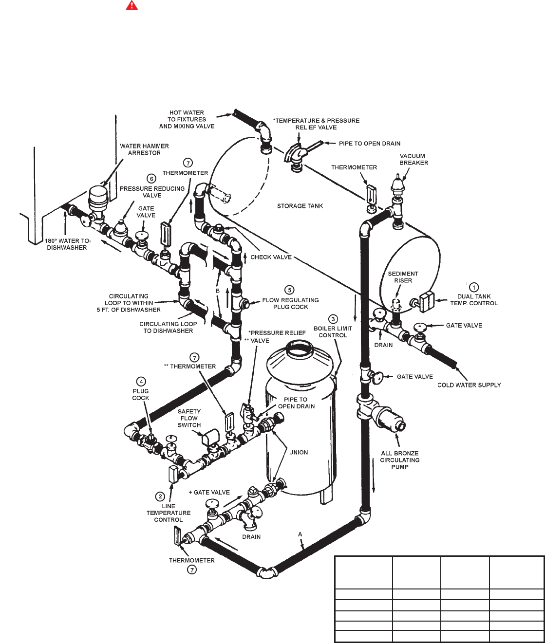
FIGURE 37
BOOSTER RECOVERY SYSTEM (PATENTED) - TWO TEMPERATURE SYSTEM WITHOUT RECIRCULATION
ONE HW-300, HW-399, HW-420, HW-520, HW-610 OR HW-670 UP-FLOW MODEL
COMMERCIAL BOILER WITH HORIZONTAL TANK
+ PIPING AND FITTINGS BETWEEN GATE VALVES AND BOILERS SHOULD BE
BRASS OR BRONZE. OTHER PIPING SHOULD CONFORM TO LOCAL CODES.
GATE VALVES ARE SHOWN FOR SERVICING BOILER. HOWEVER, LOCAL CODES
SHALL GOVERN THEIR USAGE.
* PRESSURE RELIEF VALVE RATING SHOULD NOT EXCEED PRESSURE
CAPACITY OF ANY COMPONENT IN THE SYSTEM.
** INSTALL THERMOMETER AND PRESSURE RELIEF IN OPENINGS PROVIDED
ON HW-520, HW-610 & HW-670.
IMPORTANT
THE INSTALLATION OF SAFETY FLOW SWITCH AS SHOWN IS REQUIRED TO
PROTECT THE BOILER IN CASE OF WATER SERVICE INTERRUPTION OR
CIRCULATOR FAILURE (A.O. SMITH PKG. NO. 211480).
WIRING - FIGURE 24 OR 26
INSTALL IN ACCORDANCE
WITH ALL LOCAL CODES
USE THIS TABLE FOR CORRECT
PUMP AND WATER PIPE SIZE
Minimum B & G *Armstrong
Model Pipe Size Pump Pump
Number (Inches) Size Size
HW-300 1-1/4" 125 S-25 1-1/4"
HW-399 1-1/2" 1-1/2" HV H-32 1-1/2"
HW-420 1-1/2" 1-1/2" HV H-32 1-1/2"
HW-520 1-1/2" 1-1/2" HV H-32 1-1/2"
HW-610/670 2" 2" S-35
*Assumes 50 equivalent feet pf piping or less.
DANGER
TEMPERATURE SETTING SHOULD NOT EXCEED SAFE USE TEMPERATURE AT
FIXTURES. SEE TANK TEMPERATURE CONTROL WARNING ON PAGE 32. IF
HIGHER PREHEAT TEMPERATURES ARE NECESSARY TO OBTAIN ADEQUATE
BOOSTER OUTPUT, ADD AN ANTI-SCALD VALVE FOR HOT WATER SUPPLIED TO
FIXTURES.