Specifications
Table Of Contents

9
VARIETY STEAMER
P/N 1010745 Rev. G 03/06
STEAMING GUIDE
The Variety Steamer makes it possible to expand a menu with just one piece of equipment. The Variety Steamer
produces a super-heated dry steam. This steam penetrates the product until the product’s temperature matches the
steam temperature. The guide below is an approximation of the number of steam shots and the time required to cook
the food item. Steam times may vary based on the state and quanitity of the food product.
PRODUCT
DESCRIPTION
DIAL SETTING TIME PRODUCT
DESCRIPTION
DIAL SETTING TIME
PreCooked
Items
VS-200 VS-350 Frozen Items VS-200 VS-350
Spaghetti 3 25 seconds Mixed
Vegetables
6 55 seconds
Rice 3 25 seconds Spaghetti 6 55 seconds
Egg Noodles 3 25 seconds Ravioli 12 1 minute, 55
seconds
Macaroni 3 25 seconds Tortellini 12 1 minute, 55
seconds
Ravioli 6 55 seconds Other
Tortellini 6 55 seconds Poached Eggs 18 2 minutes, 45
seconds
Roast Beef,
Sliced
2 15 seconds Bread Products 1-2 5-15 seconds
Shrimp 4 35 seconds
Tortilla Shell 1 5 seconds
Fresh Items
Shrimp 8 1 minute, 15
seconds
Broccoli 10 1 minute, 35
seconds
Products starting temperature is from a refrigerated state unless otherwise stated.
This is also based on a full 20 ounce basket or two individual 10 ounce baskets.
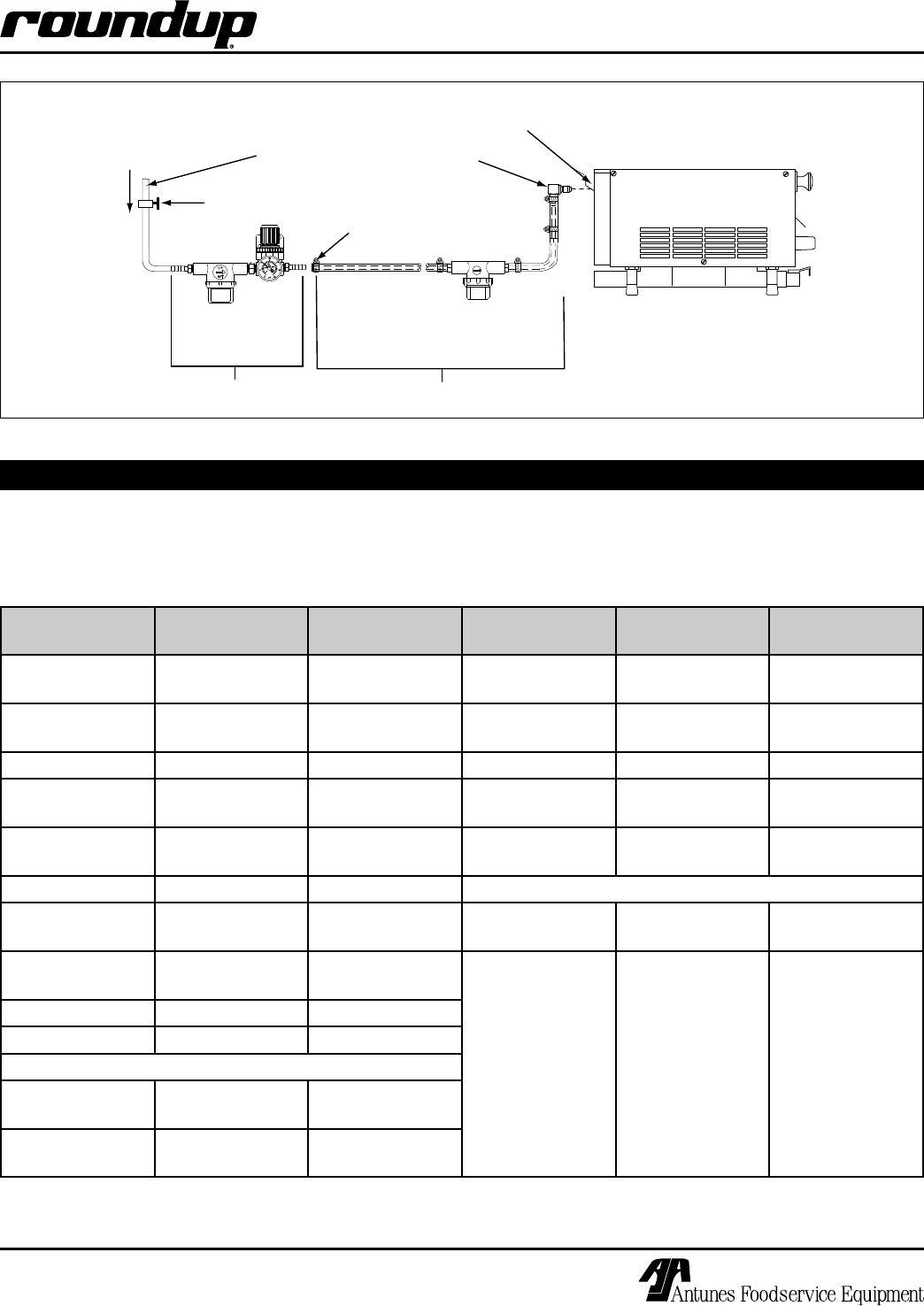
Connect Quick
Disconnect
Insert Here
Inlet Hose & Strainer
Assy. (Supplied)
Water Pressure Regulator
& Strainer Assy. (P/N 7000314) Shown
Shut Off Valve
(Not Supplied)
Cold
Water
Flow
Flexible Nylon Braided
1/4 " I.D. Tubing (Not Supplied)
Elbow Quick
Disconnect
Worm
Clamp
Figure 2. Connecting Single Water Pressure Regulator