Manual

www.amico.com 27
Appendix B
6
5
6
7
4
3
5
4
3
6
7
11
1
2
VENT TO
OUTSIDE
TO
PIPELINE
DISTRIBUTION
SYSTEM
RIGHT
BANK
LEFT
BANK
HP
LB
HP
RB
RIGHT HAND BANK
CYLINDER PRESSURE
LEFT HAND BANK
CYLINDER PRESSURE
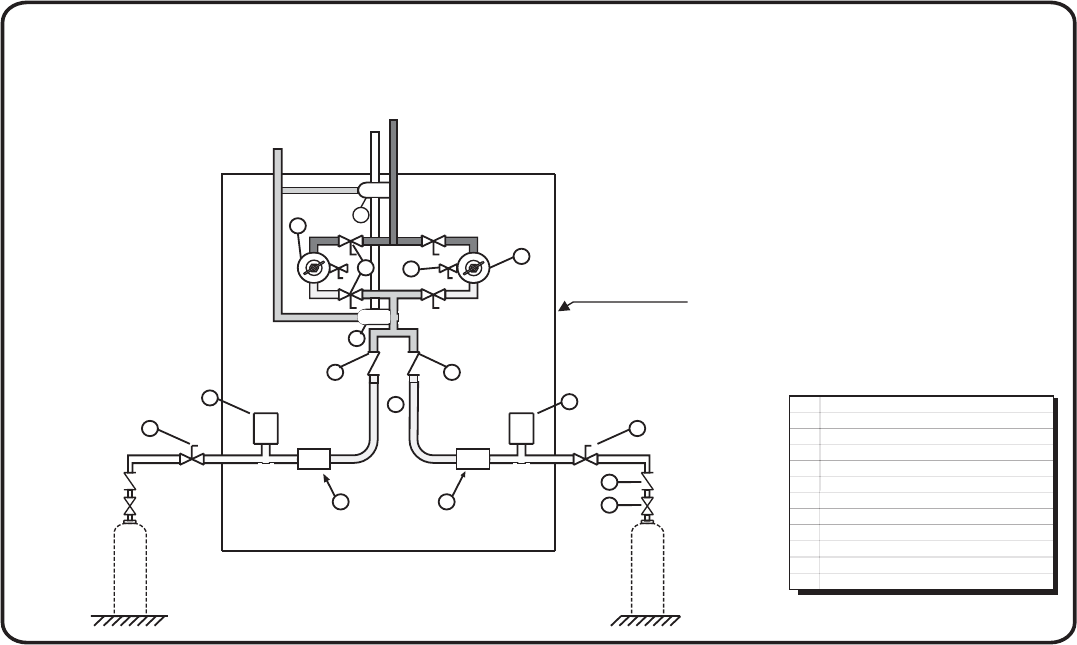
PIPING SCHEMATIC DIAGRAM
DUAL LINE REGULATORS (NFPA)
CONTROL CABINET
9
11
10
Item
1
5
10
3
7
2
6
11
4
9
8
Descripon
Pig-Tail check valve
Solenoid Valve
Line pressure relief valve
High pressure inlet valve
Check valve
Bleed Valve
Cylinder valve
Operang pressure relief valve
Pressure Transducer
2-Way valve
Line pressure regulator
88
PROVISION
FOR
RESERVE
Piping Schematic Diagram