User guide

Table Of Contents
164 Rev. 5
Appendix
Four-Quadrant Characteristics
A.11.3 Four-Quadrant Characteristics
The Model 4Q1010PS is a four-quadrant device. Refer to Figure A-3. The
supply operating as a source delivers energy into a load, and as a sink
1
it
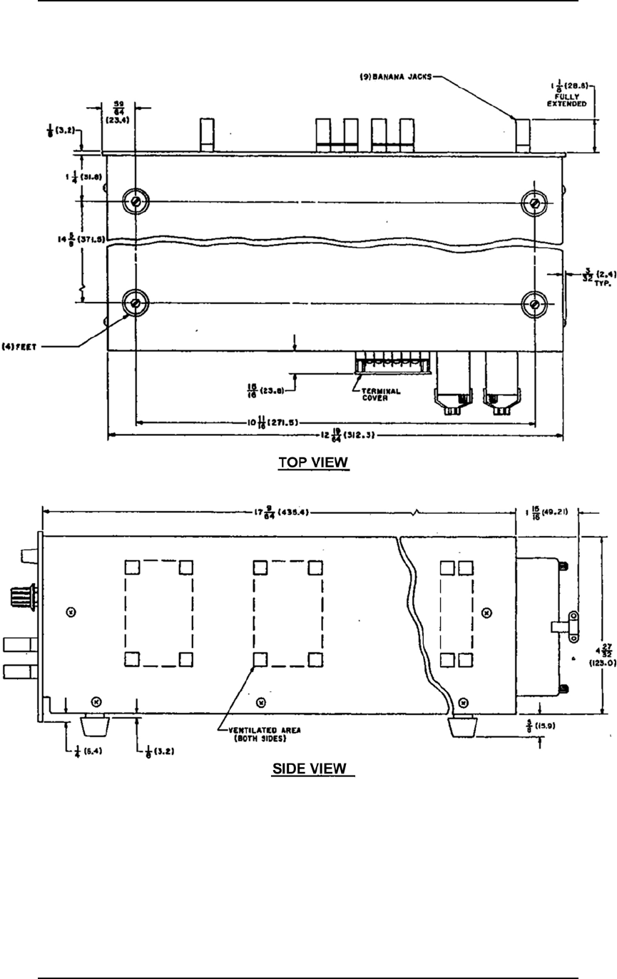
Figure A-2. 4Q1010PS Outline Drawing, Top and Side Views