Manual

AltronixCorp.-14058thStreet,Brooklyn,NY11220•718-567-8181•888-258-7669•altronix.com
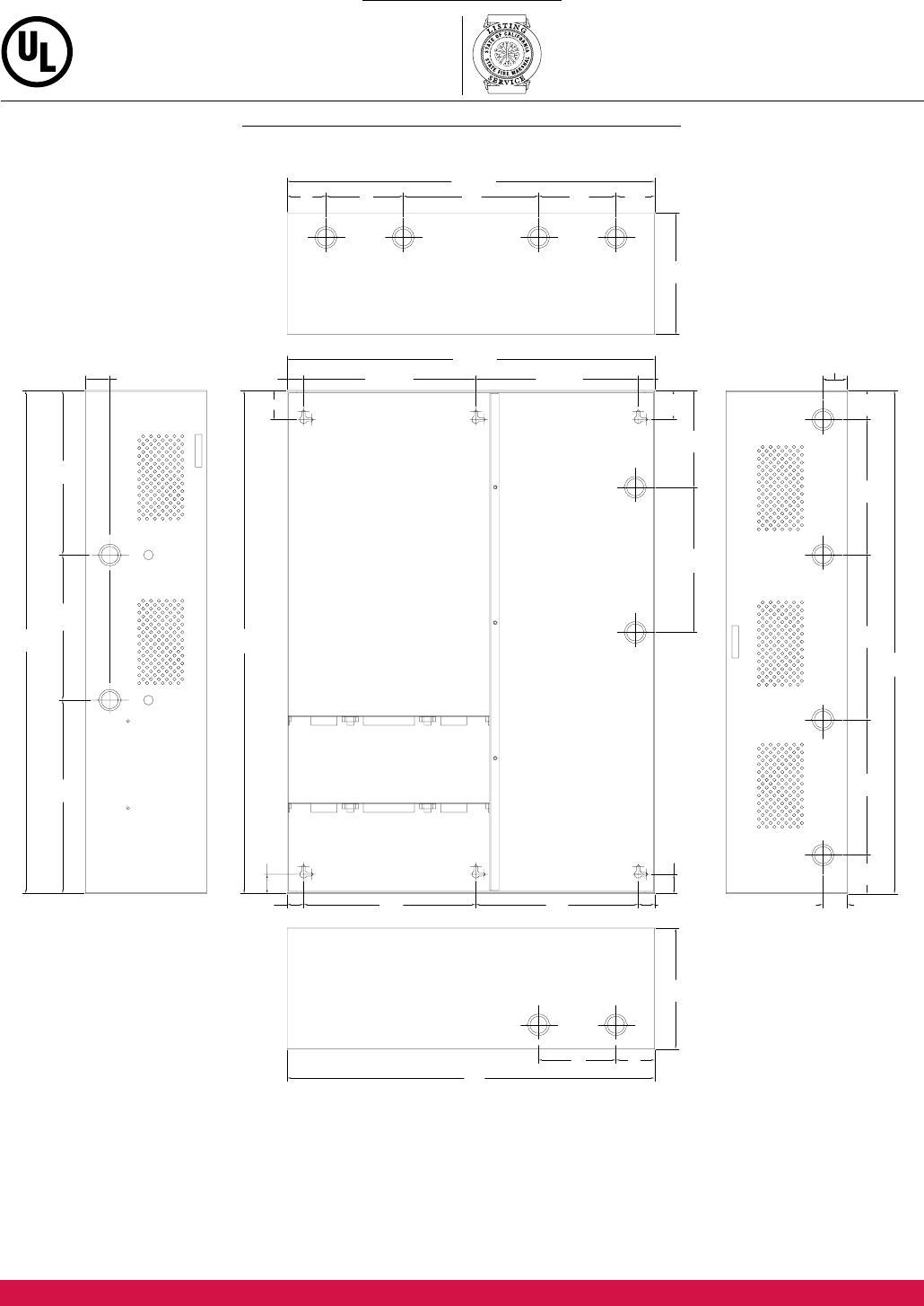
Enclosure Dimensions (H x W x D approximate):
26” x 19” x 6.25” (660.4mm x 482.6mm x 158.75mm)
Agency Approvals
UL Listed for Access Control System Units
(UL 294).
CSFM
California State Fire Marshal Approved.
Altronix Corp.
140 58th St. Brooklyn, NY
TOP
LEFT RIGHT
BOTTOM
1.25”
(31.75mm)
1.25”
(31.75mm)
1.25”
(31.75mm)
1.25”
(31.75mm)
0.85”
(21.59mm)
0.85”
(21.59mm)
1”
(25.4mm)
0.85”
(21.59mm)
1”
(25.4mm)
0.85”
(21.59mm)
8.9”
(226.06mm)
19”
(482.6mm)
19”
(482.6mm)
19”
(
482.6mm
)
2”
(50.8mm)
2”
(50.8mm)
2”
(50.8mm)
6.25”
(158.75mm)
6.25”
(158.75mm)
4”
(101.6mm)
4”
(101.6mm)
2”
(50.8mm)
4”
(101.6mm)
8.9”
(226.06mm)
8.4”
(213.36mm)
7”
(177.8mm)
7”
(177.8mm)
7”
(177.8mm)
8.4”
(213.36mm)
8.5”
(215.9mm)
8.5”
(215.9mm)
7.5”
(190.5mm)
10”
(254mm)
1.5”
(38.1mm)
1.5”
(38.1mm)
1.5”
(38.1mm)
26”
(660.4mm)
26”
(660.4mm)
7.5”
(190.5mm)
5”
(127mm)
26”
(660.4mm)