Installation Instructions User Manual

- 8 - M series
+ DC ---
– BAT +
BAT FAIL
NC C NO NC C NO
AC FAIL
DCAC
LG N
5A 250V
15
AC DELAY
15A 32V
Green
Lead
(ground)
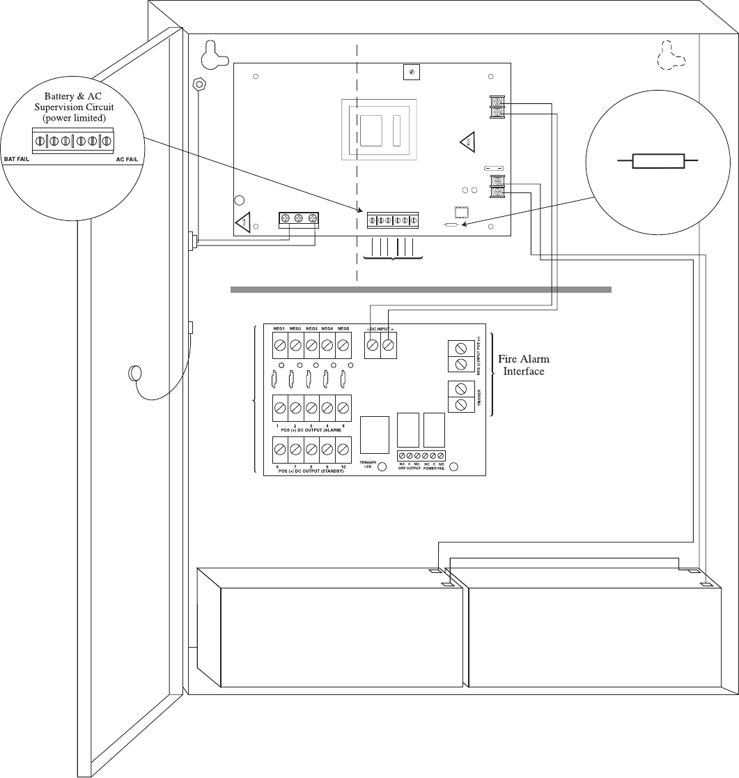
Battery connection (non power limited)
Wire Strap
(from
Enclosure
to Door)
115VAC power mains
non-power limited
Divider
Battery and AC Supervision Circuit
(power limited).
Power
Limited
Class 1
DC Outputs
to devices
(power limited)
NC C NO NC C NO
CAUTION: De-energize unit prior to servicing. For continued protection
against risk of electric shock and fire hazard replace fuses with the same type
and rating (see marking on the board). Do not expose to rain or moisture.
12VDC Rechargeable Battery
(optional)
12VDC Rechargeable Battery
(optional)
Keep power limited wiring separate from non-power limited. Use minimum 0.25" spacing.
AC DELAY
Battery and AC Supervision Circuit
(power limited).
Fig. 4
AL1024ULM
Fig. 4a
Fig. 4b