Installation Instructions User Manual

M series - 11 -
TRIGGER
LED
TRIGGER
- DC INPUT+
NEG (-) INPUT POS (+)
POWER
ON LED
TRIGGER
LED
TRIGGER
- DC INPUT+
NEG (-) INPUT POS (+)
POWER
ON LED
EOL 2.2K
EOL 2.2K
MOM5_S
ALTRONIX CORP.
BROOKLYN, NY 11220
MADE IN USA
MOM5_S
ALTRONIX CORP.
BROOKLYN, NY 11220
MADE IN USA
N.O. INPUT FROM
FACP OR ACCESS
CONTROL DEVICE
DC VOLTAGE INPUT
FROM FACP
SIGNALING
OUTPUT OR ACCESS
CONTROL DEVICE
(+)
(--)
TO TRIGGER INPUT
OF NEXT MOM5
NC C NO
DRY OUTPUT
NC C NO
POWER FAIL
NC C NO
DRY OUTPUT
NC C NO
POWER FAIL
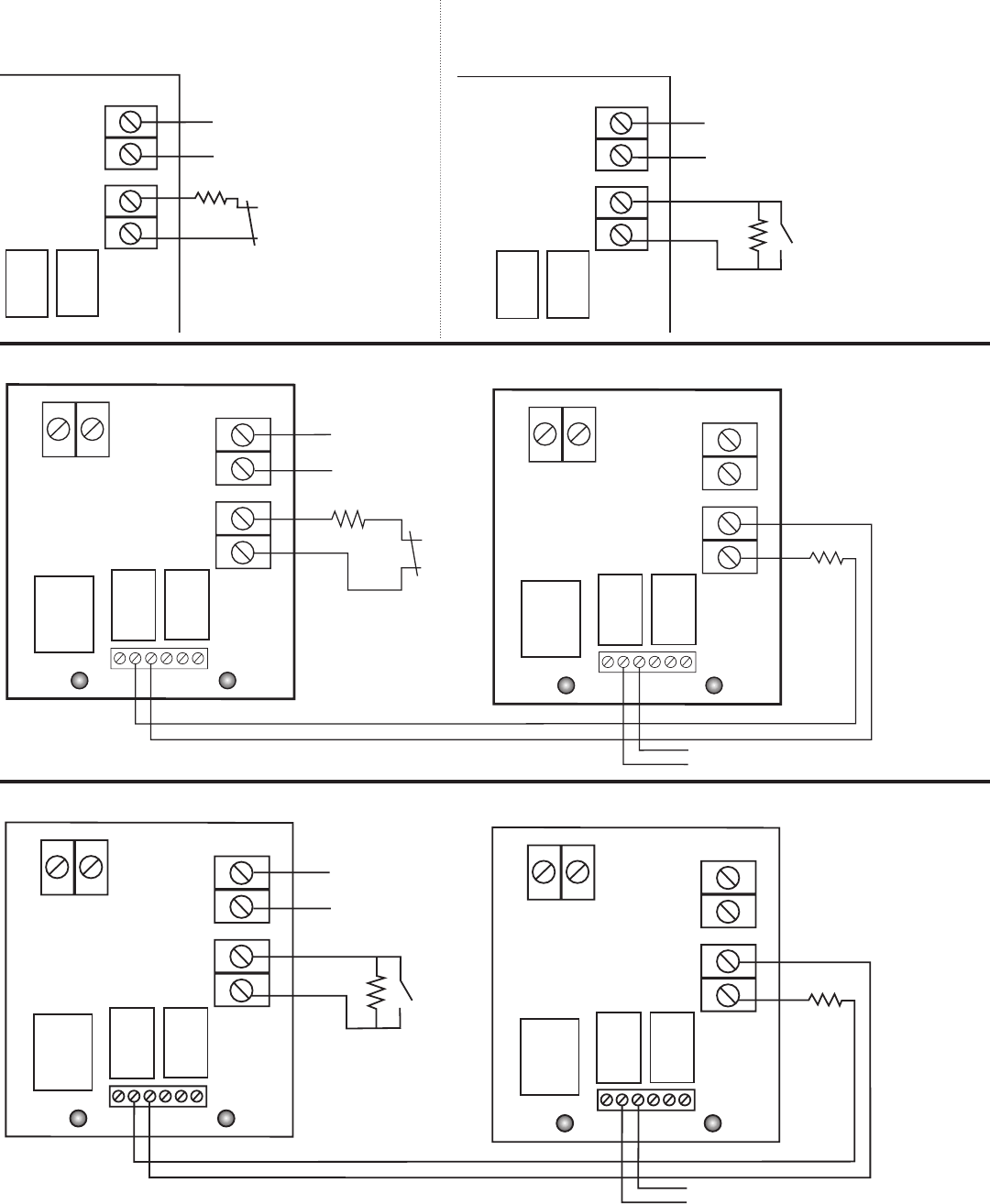
Fig. 7 - Two (2) or more MOM5 modules shown with wet and/or dry normally open trigger inputs (Non-Latching):
Fig. 6 - Two (2) or more MOM5 modules shown with wet and/or dry normally closed trigger inputs (Non-Latching):
Fig. 5
Typical Application Diagrams:
TRIGGER
NEG (-) INPUT POS (+)
EOL 2.2K
(+)
(-)
DC VOLTAGE INPUT
FROM FACP
SIGNALING
OUTPUT OR ACCESS
CONTROL DEVICE
N.C. INPUT FROM
FACP OR ACCESS
CONTROL DEVICE
TRIGGER
NEG (-) INPUT POS (+)
EOL 2.2K
(+)
(-)
DC VOLTAGE INPUT
FROM FACP
SIGNALING
OUTPUT OR ACCESS
CONTROL DEVICE
N.O. INPUT FROM
FACP OR ACCESS
CONTROL DEVICE
MOM5 module shown with wet and/or dry
normally closed trigger inputs
(Non-Latching):
MOM5 module shown with wet and/or dry normally open
trigger inputs (Non-Latching):
TRIGGER
LED
TRIGGER
- DC INPUT+
NEG (-) INPUT POS (+)
POWER
ON LED
TRIGGER
LED
TRIGGER
- DC INPUT+
NEG (-) INPUT POS (+)
POWER
ON LED
EOL 2.2K
EOL 2.2K
N.C. INPUT FROM
FACP OR ACCESS
CONTROL DEVICE
DC VOLTAGE INPUT
FROM FACP
SIGNALING
OUTPUT OR ACCESS
CONTROL DEVICE
(+)
(--)
TO TRIGGER INPUT
OF NEXT MOM5
NC C NO
DRY OUTPUT
NC C NO
POWER FAIL
NC C NO
DRY OUTPUT
NC C NO
POWER FAIL