Installation Instructions

Altronixisnotresponsibleforanytypographicalerrors.
14058thStreet,Brooklyn,NewYork11220USA,718-567-8181,fax:718-567-9056
website:www.altronix.com,e-mail:info@altronix.com,LifetimeWarranty,MadeinU.S.A.
IIAL300ULXD E01M
- 4 - AL300ULXD
MEMBER
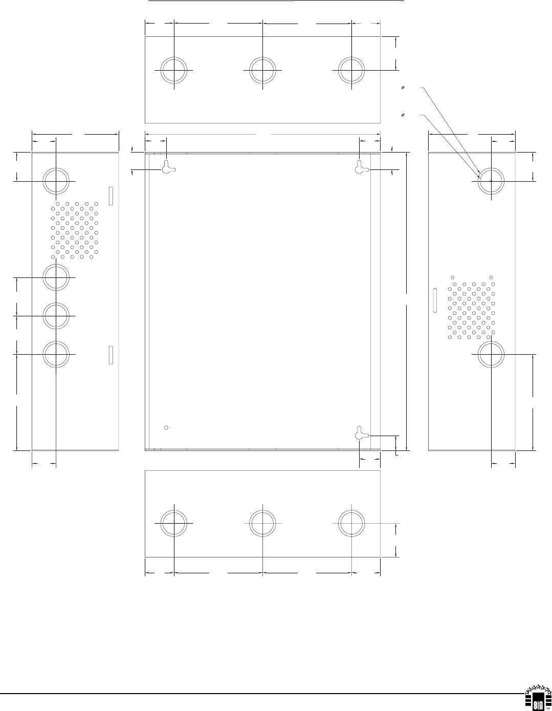
Enclosure Dimensions (H x W x D) (approximate):
15.5”(393.7mm)x12”(304.8mm)x4.5”(114.3mm)
1.5”
(38.1mm)
1.5”
(38.1mm)
1.5”
(38.1mm)
5.0”
(127.0mm)
5.0”
(127.0mm)
1.5”
(38.1mm)
2.0”
(50.8mm)
2.0”
(50.8mm)
1.75”
(44.45mm)
1.75”
(44.45mm)
4.5”
(114.3mm)
1.25”
(31.75mm)
4.5”
(114.3mm)
1.25”
(31.75mm)
1.25”
(31.75mm)
1.25”
(31.75mm)
1.1”
(27.94mm)
1.1”
(27.94mm)
0.79”
(20.06mm)
1.1”
(27.94mm)
0.91”
(23.114mm)
0.91”
(23.114mm)
1.375”
(34.925mm)
1.125”
(28.575mm)
15.5”
(393.7mm)
4.615”
(117.22mm)
12.23”
(310.64mm)
4.615”
(117.22mm)
1.5”
(38.1mm)
1.5”
(38.1mm)
4.615”
(117.22mm)
4.615”
(117.22mm)