Instruction Manual

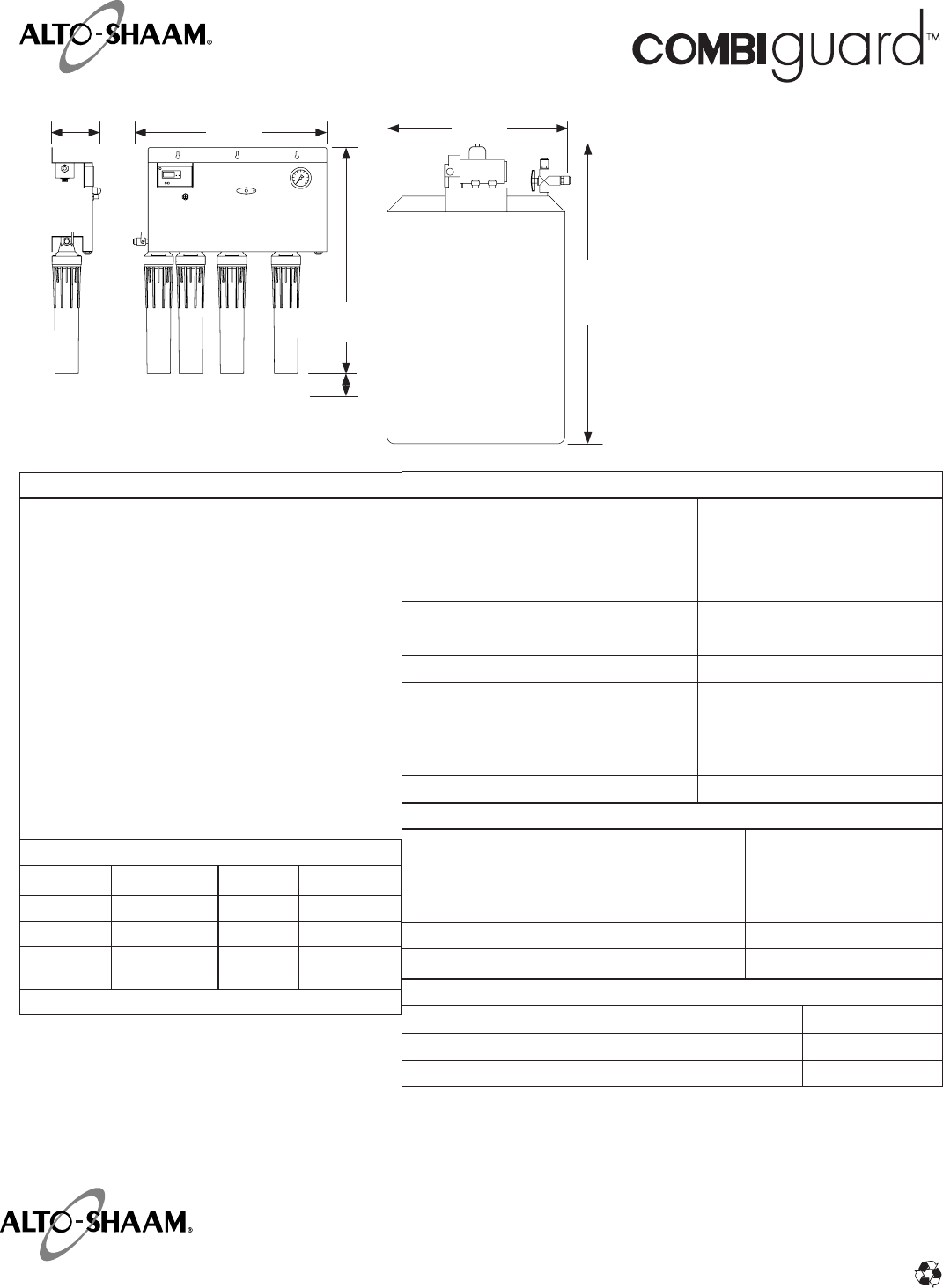
6.6"
(168mm)
Allow 3" (76mm) below
cartridges for replacement.
26"
(660mm)
BWS BLENDED WATER SYSTEM
ITEM FI-28727
W164 N9221 Water Street • P.O. Box 450 • Menomonee Falls, Wisconsin 53052-0450 • U.S.A.
phone: 262.251.3800800.558.8744u.s.a./canada fax:262.251.7067800.329.8744u.s.a. only
website: www.alto-shaam.com
printed in u.s.a
#465-05/10
due to ongoing product improvement, specifications are subject to change without notice.
ItisrecommendedthatPreFiltersbechanged
every3-6months,whencapacityisreached
orwheninletwaterpressureorowbecomes
inadequate.ChangetheScaleX2
®
cartridge
annually.Membranelifevariesdependingon
inletwaterconditionsandPreFiltermaintenance.
12-18monthsundertypicalconditionsbutitcan
beaslongas3-5years.
Thisproductisforcommercialuseonlyand
mustbeinstalled
andmaintainedaccordingto
manufacturersguidelines.
Donotuseonwaterthatismicrobiologically
unsafeorofunknownqualitywithoutadequate
disinfectionbeforeorafterthesystem.
INLET WATER CHEMISTRY
FeedTDS Upto1200ppm Iron 0.1mg/lmax
FeedpH 6-10 Turbidity 0.05NTU
Hardness* 28grainsorless Manganese 0.05mg/lmax
FreeChlorine <2mg/l Hydrogen
Sulde
0.0mg/l
*Forwateroutsideoftheseparameterscalltechnicalservice.
SYSTEM
Dimensions-ProcessorTank
(h x w x d)
30.5"x26"x6.6"
(775mmx660mmx168mm)
41"x24"dia.
(1,041mmx610mm)
InletWaterConnection 3/8”PushFitTubing
OperatingPressureRange 50-85psiat1gpm(3.5-5.9bar)
InletWaterTemperatureRange 40º-100ºF(4º-38ºC)
ShippingWeight 100lbs.(45kg)
PowerRequirements(Within5'ofunit)
Processor
RPPump
120V15Acircuit
120V15Acircuit
DrainConnection(Within5'ofunit)
2GPMMinimumFlow
PERFORMANCE
TypicalTDS*Rejection 97+%
ProductWaterProduction(at77ºF,60psi)
Productionrateisstrictlydependentonfeed
watertemperatureandpressure.
350gals(1325L)/day
14.6gals(55L)/hr
0.25gpm
BlendedWaterProduction Upto400GPD
RepressurizationPump(Self-priming) 0.25-2.75gpmat50psi
ACCESSORIES
ReplacementFiltercartridgeAMS-QT FI-29316
ReplacementFiltercartridgeSCLX2-Q FI-29317
ReplacementPreFilterFiltercartridgeCTO-Q FI-29318
INSTALLATION REQUIREMENTS
•
Connectiontosystemshouldbe
tothecoldwaterinletonly.
•Donotexceedsystemspecicationsfor
temperatureandpressure.
•Provideadedicated3/4"waterlinetotheunitto
consistentowandpressuretothesystem.
•Allow3"(76mm)clearancebelowsystemforlter
cartridgeremovalandreplacement.
•Connectlteredwaterlinetosteamproduction
connectionsonly.Donotuseforcondenserwater.
•Detailedinstallation,operation&maintenance
manualisincludedwitheachsystem.
•MounttheBWS-QTprocessorwheretheWater
QualityMonitorandByPassValvecanbeeasily
viewedandaccessed.
24"
(610mm)
30.5"
(775mm)
41"
(1,041mm)


