Operation Manual
35Technische Änderungen vorbehalten | 83057800cDE – Originalbetriebsanleitung | ait-deutschland GmbH
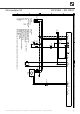
Klemmenplan
SW 232H3 – SW 302H3
SW232H3 - SW302H3
-
a
b
Absicherung bitte den technischen
Daten entnehmen
-X10
-F11 -F13
-X8
EVU
Legende:
Betriebsmittel
A1
A2
A3
EVU
F11
F13
Klemmen
OUT5
OUT6
OUT10
OUT11
OUT12
OUT13
OUT14
OUT15
OUT16
OUT17
IN4
IN5
IN6
NTC8
NTC10
NTC12
NTC15
X3-X12
X8
X10
-ZW1
VBO
ZW2/SST
Kürzel
VBO
ZW1
ZW2/SST
ZIP
FP1
MZ1/MIS
MA1/MIS
ZUP
HUP
BUP
ASD
EVU1
EVU2
TRL ext.
TA
TB1
TBW
X3-X12
X8
X10
-X3
ZIP
FP1
MIS
DE
Funktion
Reglerplatine; Achtung: I-max = 6,3A/230VAC
Klemmen in Schaltkasten Wärmepumpe
Unterverteilung Hausinstallation
Energie Versorger Kontakt; bei Freigabe geschlossen; Brücke wenn keine Sperrzeit
Leitungsschutzschalter Steuerung
Leitungsschutzschalter Verdichter
Sole Umwälzpumpe
Steuersignal zusätzlicher Wärmeerzeuger 1
Steuersignal zusätzlicher Wärmeerzeuger 2 (alternativ Sammelstörung)
Zirkulationspumpe
Pumpe Mischkreis 1
Lade/Entlade/Kühlmischer 1 zu
Lade/Entlade/Kühlmischer 1 auf
Zusatzumwälzpumpe
Heizkreisumwälzpumpe
Brauchwasser Umschaltventil
Soledruck Pressostat; Bauseits bei Bedarf
Energie Versorger Kontakt; bei Freigabe geschlossen; Brücke wenn keine Sperrzeit
Energie Versorger Kontakt; bei Freigabe geschlossen; Brücke wenn keine Sperrzeit
Externer Rücklauffühler
Aussenfühler
Fühler Mischkreis 1
Brauchwasserfühler/thermostat
Klemmleisten auf Reglerplatine
Einspeisung Leistung Verdichter; Rechtsdrehfeld ist zwingend erforderlich!
Klemmleiste in Schaltkasten Wärmepumpe
ZUP
831205b
BUP
HUP
-X4
ASD
-X5 -X8 -X9
123 45678
12 8
A
B
C
D
E
F
A
B
C
D
E
F
Blatt
Bl.
1
1
3 4567
AIT
831205
Klemmenplan
ait-deutschland GmbH
ÄM021/2016
10.07.2015
19.10.2015
30.06.2016
AP
AP
AP
L
1~N/PE/230V/50Hz
3
N
PE
PE
3~PE/400V/50Hz
4
L1
L2
L3
2
A1A2
OUT4
OUT5
OUT6
OUT7
OUT8
OUT9
OUT10
OUT11
OUT12
OUT13
OUT14
OUT15
OUT16
OUT17
L
L
L
L
IN1
P
IN2
IN3
IN4
IN5
IN6
IN7
NTC6
M6
NTC7
M7
NTC8
TRL ext.
M8
NTC9
M9
NTC10
TA
M10
NTC11
M11
NTC12
TB1
M12
NTC13
M13
NTC14
M14
NTC15
TBW
M15
A2
A3
A1
Änderung Datum
Datum
Bearbeiter
Geprüft
NormName
10.07.2015
Pfleger
R.
M
M










