Operation Manual

44
Technische Änderungen vorbehalten | 83053500kDE – Originalbetriebsanleitung | ait-deutschland GmbH
L1 L2 L3 N
PE
N
-X10
1
2
-Q3
/2.5
3
4
M
3
U1V1W1PE
-G1
VENT
5
6
1
2
-Q1
/2.4
3
4
RST
UVW
A1
A2
-Q11
M
3
T1 T2 T3 PE
-M1
VD1
5
6
-E20
L1 L2 L3 12 14
11
-B1
ASD
/2.1
VD1
/2.1
VD1-A1
/2.1
N-HDP
/2.1
E20
/2.1
N Reg
/2.1
Q11
X8
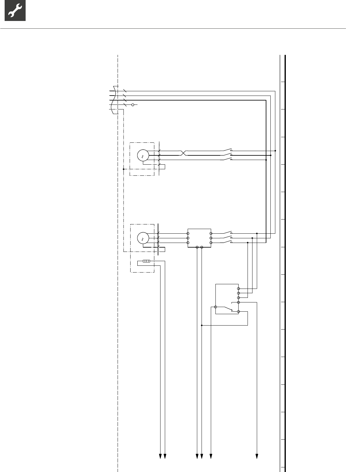
Einspeisung Leistung Verdichter --> Aus Hydraulikmodul
Sumpfheizung Verdichter 1
E20
L1,L2,L3,PE; Einspeisung Leistung Verdichter; Rechtsdrehfeld ist zwingend erforderlich!
-G1
VD1
VENT
M1
Schütz Verdichter
X8
Q1
PE
VD1
sw
Funktion
3~N/PE/400V/50Hz
gr
G1
Legende:
DE817377b
3
3~N/PE/400V/50Hz
Verdichter
Schütz Ventilator
Ventilator
2
-M1
br
Anlaufstrom Begrenzung Verdichter
Betriebsmittel
PE
Q3
1
VENT
1234
Phasenfolgerelais; wenn Phasenfolge in Ordnung 11 + 14 geschlossen
B1
Änderung
20.02.2014
PEP 003/2012
1
Datum
Bearb.
Blatt-Nr.
Achim Pfleger
10X601 - 10X602; 10X609;
10X605 - 10X606;
Zustand
a
1/2
Achim Pfleger 17.05.2011
LWD 50-90 / LWD 50-70 Reversibel
Datum
817377
Name
1 2 3 4 5 6 7 8 9 10 11 12 13 14 15
16
1 2 3 4 5 6 7 8 9 10 11 12 13 14 15 16
b ÄM 075/2013
Bl von Anz
LWD 50A(RX) – LWD 70A(RX), LWD 90A Stromlaufplan 1/2










