Operation Manual

31
Technische Änderungen vorbehalten | 83053500kDE – Originalbetriebsanleitung | ait-deutschland GmbH
DE819392
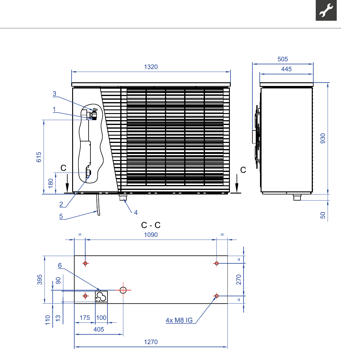
Alle Maße in mm.
A Vorderansicht
B Seitenansicht
C-C Schnitt (Grundplatte)
1 Heizwasservorlauf G1“ DIN ISO 228 achdicht.
2 Heizwasserrücklauf G1“ DIN ISO 228 achdicht.
3 Entlüfter
4 Stutzen (im Beipack) für Kondensatablaufrohr DN40
5 Kabel für Leistung, Steuerung, BUS, Länge ~ 8m ab Gerät
6 Durchführung für Vor- u. Rücklauf und Kabel (im Beipack)
LWD 50A(RX) – LWD 70A(RX),
LWD 90A
Maßbilder










