Operation Manual
35
Technische wijzigingen voorbehouden | 83051400cNL – vertaling van de installatie- en gebruikershandleiding | ait-deutschland GmbH
-F10
-F13
A1
A2
-K13
-F14
A1
A2
-K14
-F11
A1
A2
M
ZIP
M
ZUP
ZIP
ZW2
M
X52
-X8
Stekker in schakelkast warmtepomp (sensorkabel)
N
3-pol. motorbeveiligingsschakelaar compressor; Opge let: Rechts draaiveld is noodzakelijk!
5
ZW2/SST
A6
ZW1
ZW1K13
10
-X5
4
X1/X5
F10
Motorbeveiligingsschakelaar regelaar
5
Beveiliging elektr. verwarmingselement buer
5
F11
Warmtepomp
L1
A1
5
3~N/PE/400V/50Hz
PE
TB1
HUP
BUP
TA
11
-X12
A2
NL831164
HUP
X8
PE
-X1
MZ1
N
PE
ZW2/SST
ZW2
4
Onderverdeling huisinstallatie
RFV
Aansluitdoos in warmtepomp; invoer vermogen compres sor
MIS
7
Ventilator; intern bedraad
A1
Klemmenlijst in schakelkast wandregelaar; N/PE-verd eling voor externe 230V toestellen
Stuursignaal van aanvullende warmteopwekker 2
L
M
-X0
2
N
A3
VBO
ZUP
-X3
Hulpcirculatiepomp
-X2
Lucht/water buiten
X7
TBW
1
MA1
EVU
HUP
3
Klemmen in schakelkast wandregelaar
7
A4
GND
2
Stekkers op regelaarprintplaat (zie sticker)
9
3~PE/400V/50Hz
FP1
BUP
N
Klemmen
ZW1
Benaming
MOT
12
TBW
8
3
PE
6
Klemmenstrip op regelaarprintplaat (zie sticker)
A2
Buer
GND
A4
X0-X4
VBO
ZUP
Stuursignaal van aanvullende warmteopwekker 1
Externe retourvoeler
8
Laad/Ontlaad/Koelmengklep 1 open
3
Pomp mengcircuit 1
Buitenvoeler
1
Warm kraanwater circulatiepomp/omschakelklepBUP
A3
Stekker in schakelkast warmtepomp (stuurstroomkabel )
Beveiliging elektr. verwarmingselement warm kraanwa ter of buer
A6
11
ZW2
X12
ZIP Circulatiepomp
B
ev
e
i
ligi
n
g
a
.u.b
. op
maken u
i
t tec
h
ni
s
c
h
e
s
p
e
c
i
fi
c
ati
e
s
-X52
F14
-X7
Vermogensbeveiligingsschakelaar aanvullende verwarm ing 2
ZW1
K14
A5
A5
3~N/PE/400V/50Hz
RFV
Warm kraanwater of buer
Vermogensbeveiligingsschakelaar aanvullende verwarm ing 1F13
L1
Geen functie
TB1
L1
ZW1
-X4
RFV
Contact voor energiebedrijf; bij vrijgave gesloten; brug indien geen spertijd
FP1
N
MOT
2
TB1
1~N/PE/230V/50Hz
EVU
GND
Motorbeveiliging; intern bedraad
TRL
Functie
B10 A
9
MA1/MIS
TA
GND
Regelaarprintplaat; Opgelet: I-max = 6A/230VAC
PEX
TA
Legenda:
ASD
TBW
TRL
Laad/Ontlaad/Koelmengklep 1 dicht
PE
GND
GND
104
12
PEX
6
Voeler mengcircuit 1
Sensor/thermostat warm kraanwater
EVU
Circulatiepomp verwarmingscircuit
MZ1/MIS
Toebehoren: afstandsregelaar
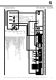
Aansluitschema LW 250A / 310A
831164
Achim Peger 04.12.2009
- PEP 020/2009
1 2
3 4 5 6 7
8
9
10
11
12
13
14
15
16
1 2 3 4 5 6 7 8 9 10 11 12 13 14 15 16
1/1
1
04.12.2009
10X449;
Achim Peger
10X547;
Bladnr.
Toestand
Wijziging
Bewerking
Datum
Naam
Bl von Anz
Datum
Aansluitschema LW 90A/RX – 140A/RX










