Specifications

Installation
35
F8208301
© Copyright, Alliance Laundry Systems LLC – DO NOT COPY or TRANSMIT
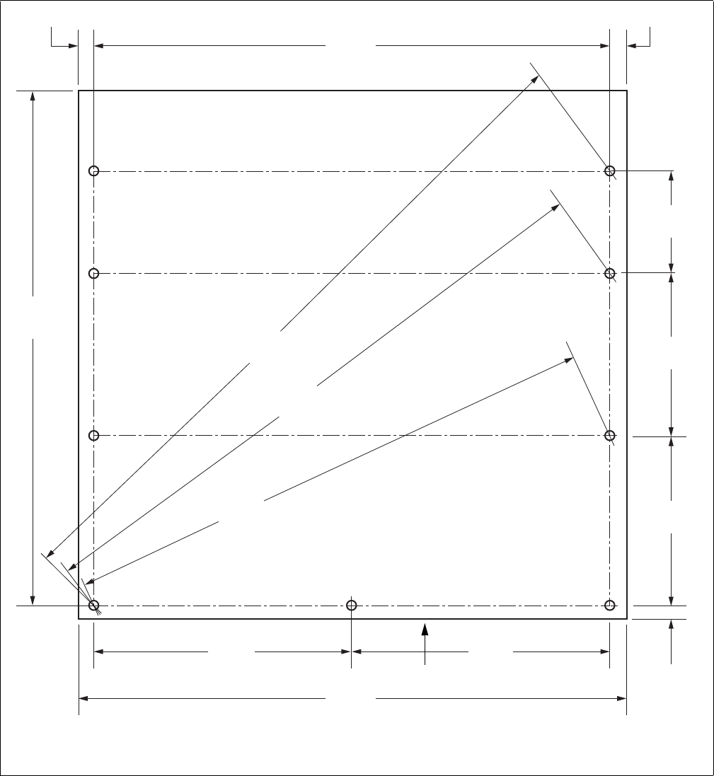
Mounting Bolt Hole Locations (Without Elevated Base Frames)
Figure 18
IMPORTANT: Drawing is not to scale.
CHM2069N
125 Models
46.5 in.
(1181 mm)
0.75 in.
(19 mm)
0.75 in.
(19 mm)
10 in.
(254 mm)
15 in.
(381 mm)
15.25 in.
(388 mm)
0.75 in.
(19 mm)
23.25 in.
(591 mm)
23.25 in.
(591 mm)
48 in.
(1219 mm)
48.94 in.
(1243 mm)
61.5 in.
(1562 mm)
48 in.
(1219 mm)
55.47 in.
(1409 mm)
Front of Front Panel










