Specifications

© Copyright, Alliance Laundry Systems LLC - DO NOT COPY or TRANSMIT
Specifications and Dimensions
C003292ENR1
22
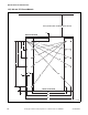
Clearances
IMPORTANT: If the machines are to be mounted
less than 18 in. (457 mm) from each other or less
than 18 in. (457 mm) from a side wall, only the
inside bolt holes will be accessible. If the machines
are to be mounted less than 6 in. (152 mm) from
each other, a wall or other equipment, they must be
installed without using the skirt around the bottom,
as it cannot be reinstalled after the machines are in
place.
PHM692N
* When using minimum clearances for installing 80 pound or larger machines, adjustments must be made to include the width of the
single-cup (standard) or 5-cup (optional) dispenser mounted on the side of the machine. Refer to Figure 5 through Figure 8.
Figure 9
PHM692N
24 in.
(610 mm)
24 in.
(610 mm)
18 in. (recommended)
(457 mm)
1* in. (minimum)
(25 mm)
18 in. (recommended)
(457 mm)
6* in. (minimum)
(152 mm)