Technical data
Manuals
Brands
Albany Manuals
Home building and Decor
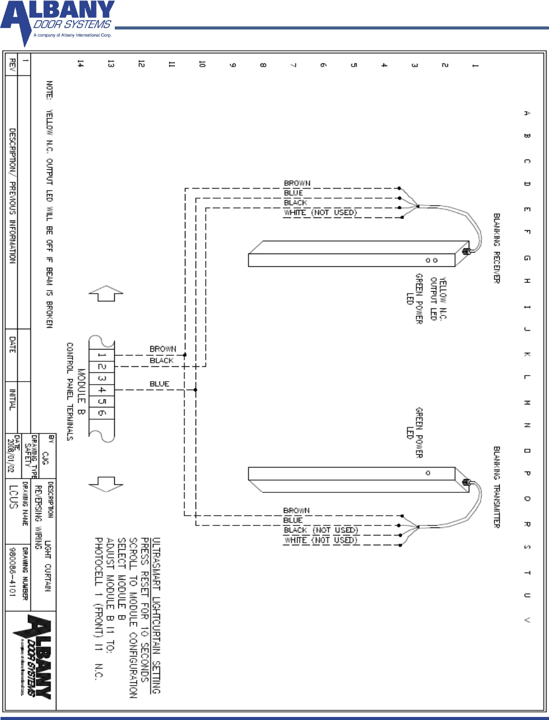
UltraSmart
21
22
23
24
25
26
27
28
29
30
27
Manual #001451
Version 4.2
1
...
...
26
27
28
29
30
...
...
44