Technical data
Manuals
Brands
Albany Manuals
Home building and Decor
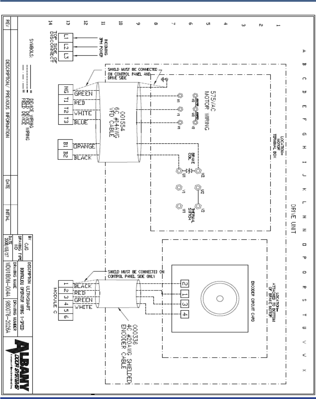
UltraSmart
21
22
23
24
25
26
27
28
29
30
Rev. 9/27/2009
Manual #001451
26
Operation
High Speed Doors
1
...
...
25
26
27
28
29
...
...
44