Operation Manual

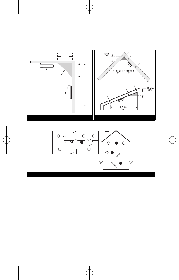
• Installeer rookmelders aan hellende, puntige of gebogen zolderingen op of binnen
0,9 m (3 ft) van het hoogste punt (horizontaal gemeten). Rookmelders in kamers
met plafondhellingen die groter zijn dan 0,3 m per 2,4 m (1 voet per 8 voet) hori-
zontaal, moeten aan de hoge kant van de kamer worden bevestigd. Een rij
melders wordt, horizontaal gemeten, met een onderlinge afstand van en binnen
0,9 m (3 ft ) van de punt van de zoldering geplaatst (zie afbeelding 3).
WOONWAGENINSTALLATIE
Moderne woonwagens zijn goed geïsoleerd ontworpen en gebouwd. Installeer rook-
melders zoals hierboven is aanbevolen (raadpleeg AANBEVOLEN LOCATIES en de
afbeeldingen 1 en 2).
In oudere woonwagens die niet goed geïsoleerd zijn vergeleken met de huidige nor-
men, kan extreme hitte of kou door slecht gesoleerde wanden en een slecht geïsoleerd
dak van buiten naar binnen komen. Dit kan een thermische barrire vormen die de rook
belet een melder te bereiken die aan het plafond is gemonteerd. Installeer in dergelijke
woonwagens de rookmelder op een binnenwand met de bovenrand van de melder
minimaal 10 cm (4”) en maximaal 30,5 cm (12”) onder het plafond (zie afbeelding 1).
Als u niet zeker bent van de isolatie van uw woonwagen, of als u merkt dat de
buitenwanden en het plafond ofwel heet of koud zijn, installeert u de melder op een
binnenwand.Voor een minimale beveiliging, installeert u ten minste een melder dicht
bij de slaapkamers.Voor extra beveiliging raadpleegt u het ENKELE-VERDIEPINGPLAN
in afbeelding 2.
WAARSCHUWING: TEST DE WERKING VAN UW ROOKMELDER NADAT DE
CARAVAN, WOONWAGEN OF CAMPER UIT DE STALLING WORDT GEHAALD,
VOOR ELKE TRIP EN TEN MINSTE EEN KEER PER WEEK TIJDENS HET GEBRUIK.
SLAAPKAMER
SLAAPKAMER
KEUKEN
HUISKAMER
SLAAPKAMER
SLAAPKAMER
SLAAPKAMER
KELDER
KEUKEN
HAL
SLAAPKAMER
HUIS-
KAMER
PLATTEGROND ENKELE
VERDIEPING
PLATTEGROND MEER
VERDIEPINGEN
10 cm
MINIMAAL
10 cm
PLAFOND
DODELUCHT-
RUIMTE
ZIJWAND
MINIMAAL
30.5 cm
MAXIMAAL
HET BESTE HIER
NOOIT HIER
HIER AANVAARDBAAR
●
Rookmelders voor minimale bescherming
●
Rookmelders voor extra bescherming
AFBEELDING 2
AFBEELDING 3
AFBEELDING 1
ERGENS IN DIT
GEDEELTE
NIET IN DIT
GEDEELTE
ERGENS IN DIT
GEDEELTE
NIET IN DIT
GEDEELTE
0306-7226-02_DU.qxd:_ 2013.1.30 9:44 AM Page 3










