Operation Manual

• Bij gangen van meer dan 9 mtr lengte, moet er aan beide uiteinden een
r
ookmelder geplaatst worden.
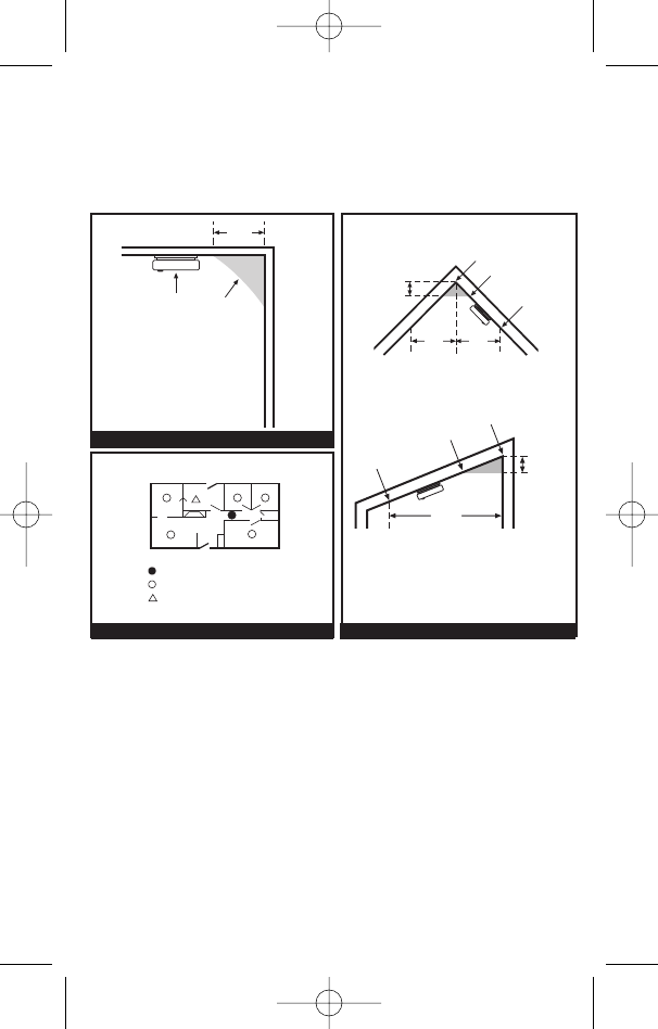
• Installeer rookmelders op hellende plafonds, puntplafonds of plafonds van
k
athedralen op of binnen een afstand van 0,9 m van het hoogste punt
(horizontaal gemeten). Rookmelders in kamers met plafondhellingen die
horizontaal groter zijn dan 0,3 m over een lengte van 2,4 m, moeten aan de hoge
k
ant van de kamer geplaatst worden. Plaats de rookmelder op het plafond,
maximaal 0,9 m vanaf de muur op de hoogst mogelijke plaats (zie figuur 3).
SLAAPKAMER
KEUKEN
WOONKAMER
SLAAPKAMER
SLAAPKAMER
SLAAPKAMER
PLAN VOOR ÉÉN VERDIEPING
NOT
IN THIS
AREA
PLAFOND
DODE
L
UCHTRUIMTE
MINIMAAL
BEST
HIER
NOOIT
HIER
(20”)
50 cm
Voor minimalebescherming
Voor extra bescherming
Hittemelder
FIGUUR 2
FIGUUR 3
FIGUUR 1
(3’)
0,9 m
(3’)
0
,9 m
(4”)
102 mm
N
IET
I
N DIT
G
EBIED
OP EENDER
WELKE PLAATS
DIT GEBIED
(3’)
0,9 m
(4")
102mm
NIET
IN DIT
GEBIED
OP EENDER
WELKE PLAATS IN
DIT GEBIED
0308-7204-04(10Y29)_NL_AJAX_CF.qxd:_ 2014.4.1 12:02 PM Page 3










