Use and Care Manual

7
45-03034 / 967 02 71-01
REF. PART NO. QTY. DESCRIPTION
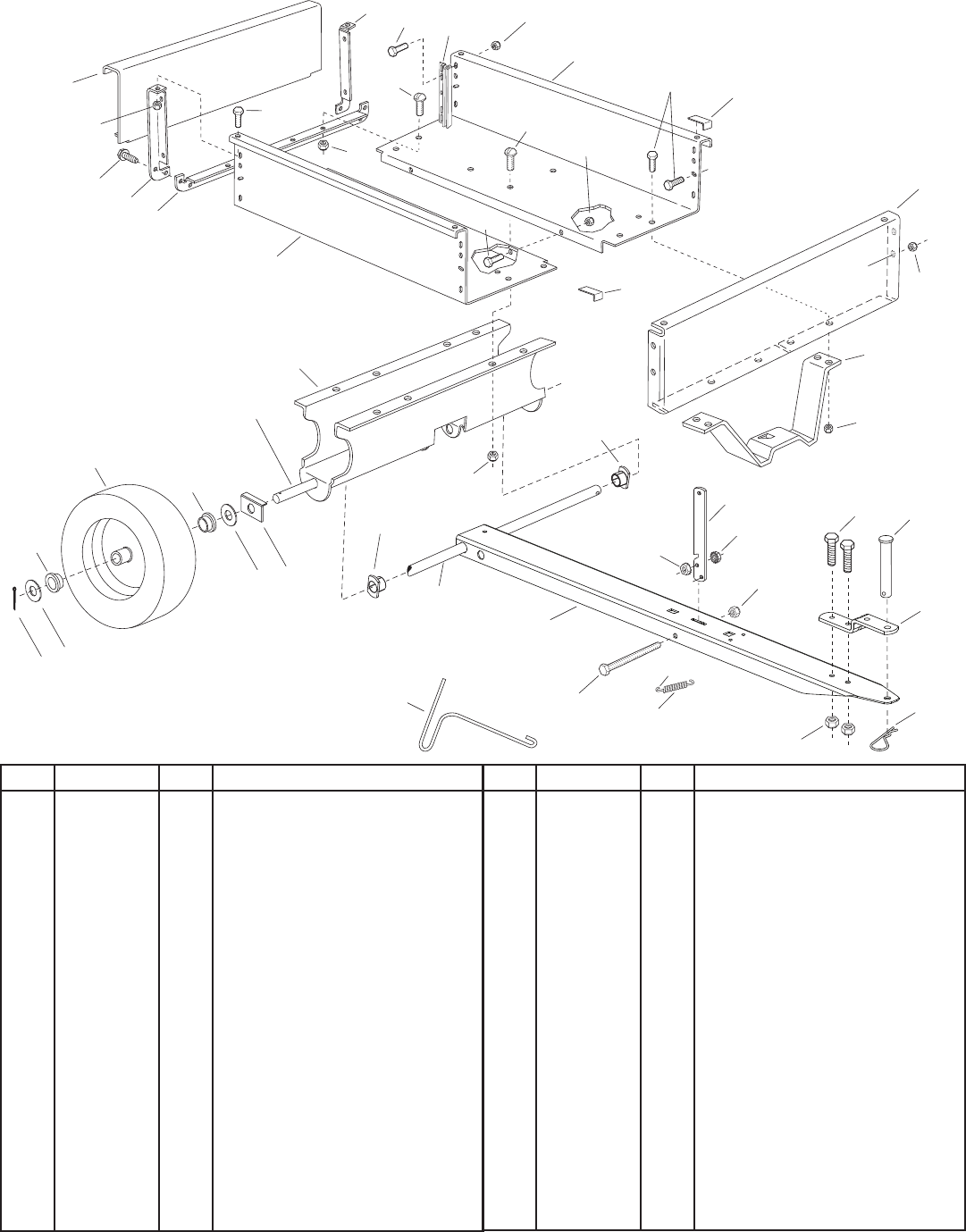
1 24907 1 Tailgate
2 24143 1 Left Rear Angle
3 24144 1 Right Rear Angle
4 24142 1 Lower Rear Angle
5 23912 2 Cart Body
6 23548 2 Guide, Tailgate
7 48789 2 Cap, Front Corner
8 24906 1 Front Panel
9 24497 1 Latch Stand Bracket
10 25996 1 Wheel Support
11 24908 1 Axle
12 40880 2 Wheel
13 24498 1 Latch Lock Lever
14 27715 1 Draw Bar Tongue
15 23687 1 Hitch Bracket
16 HA23638 1 Hitch Pin
17 43343 1 Hair Cotter Pin, 1/8" (#4)
REF. PART NO. QTY. DESCRIPTION
18 43012 18 Hex Bolt, 1/4-20 x 3/4"
19 47189 18 Nylock Nut, 1/4-20
20 43814 12 Slt. Truss Hd. Bolt, 5/16-18 x 3/4"
21 47810 13 Nylock Nut, 5/16-18
22 47630 4 Bolt, Self Tapping 5/16-18 x 3/4"
23 47407 1 Hex Bolt, 5/16-18 x 4"
24 46980 2 Hex Nut, 5/16-18 (SEMS)
25 43001 2 Hex Bolt, 3/8-16 x 1" Lg.
26 HA21362 2 Nylock Nut, 3/8-16*
27 47408 1 Extension Spring
28 47622 1 Spring Puller Tool
29 43010 2 Cotter Pin, 1/8" x 1-1/4"
30 R19212016 4 Washer, .656" x 1.25" x .059"
31 25910 2 Axle Clip
32 40315 2 Flange Bearing
33 40880 BRG 4 Wheel Bearing (included in wheel)
42960 1 Owner's Manual
1
3
2
4
5
5
6
7
7
8
9
10
11
12
13
14
15
16
18
18
18
18
19
19
19
19
20
20
21
21
22
24
24
23
21
A
A
17
19
26
25
27
29
28
30
32
31
30
33
33
32
11
B
B








