Use and Care Guide

6
Figura 6
Figura 7
Figura 8
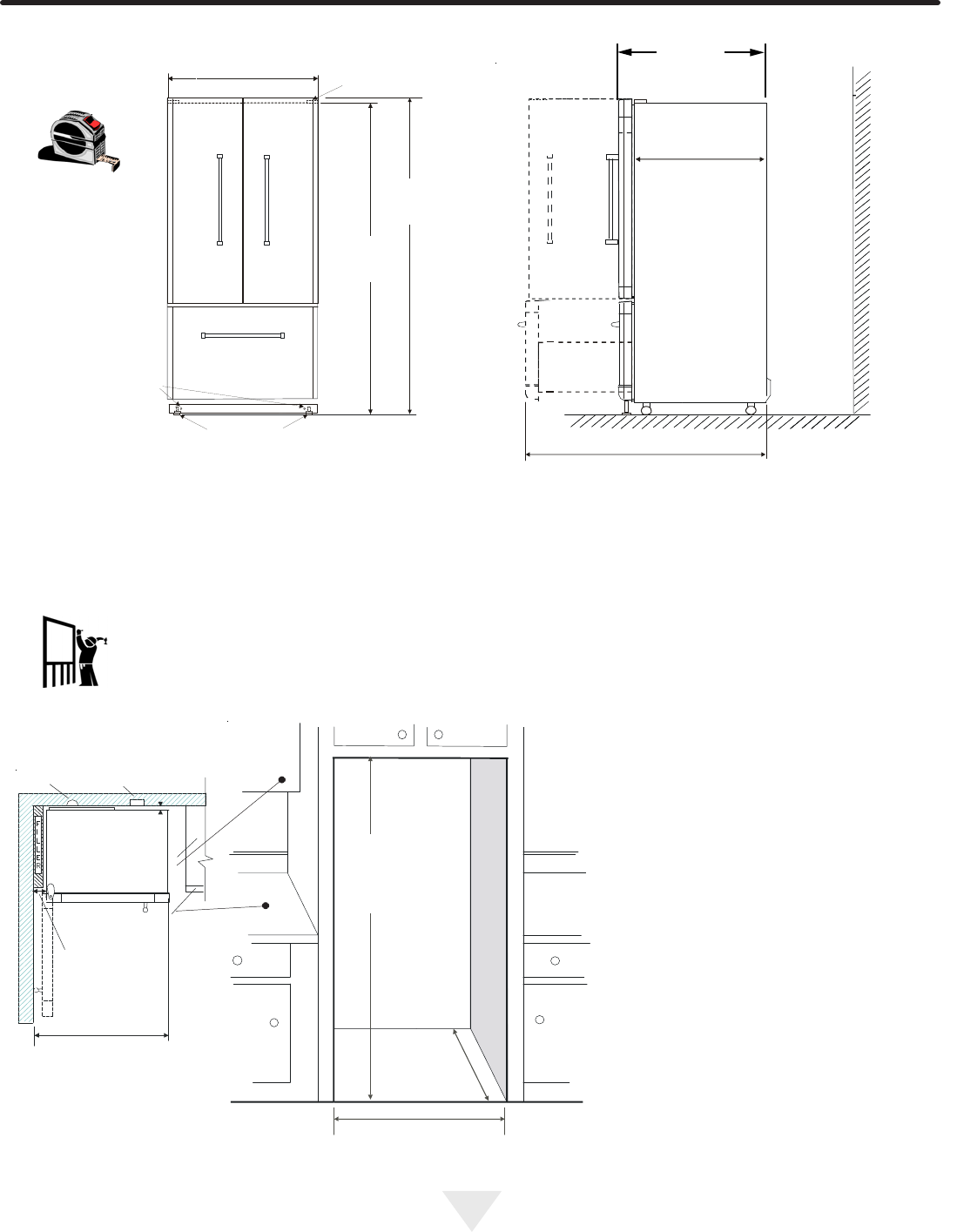
DIMENSIONES DEL PRODUCTO
1” (2.5 cm)
24” (61 cm)
41-1/4”
(105 cm)
4” (10.2 cm)
25” (63.5 cm)
36-1/2”
(92.7 cm)
4/1-07
(
)mc 4.871
76-1/4”
”
(
193.7 cm)
35 5/8”
(90.5 cm)
25”
(63.5 cm)
26 7/8”
(68.3 cm)
23 5/8”
(60.0 cm)
44 1/2”
(113.0 cm)
68 3/16”
(173.2 cm)
70”
(177.8 cm)
Sin cubierta superior
Cubierta superior de 6"
Profundidad de la
cubierta
Espacio para el
giro de la puerta
Con la puerta abierta a 90º
Medidas para la instalación
empotrada
Agua
Conexiones
eléctricas
Intersticio
Profundidad del gabinete
Con la gaveta del congelador abierta
Dimensiones
Ancho del cuerpo
Bisagra
Ajustadores de
patas delanteras
de 3/8”
Estabilizadores
frontales










