User Manual
Manuals
Brands
AGA Manuals
Cooking Appliances
20 Inch Freestanding Electric Range with 1 Element Burner, Double Oven, Simmering Oven, Warming Oven, Touchpad Controls, Power Boost, Overheating Detection, Child Safety Lock, and 9 Power Settings: Pearl Ashes
7
8
9
10
11
12
13
14
15
16
12
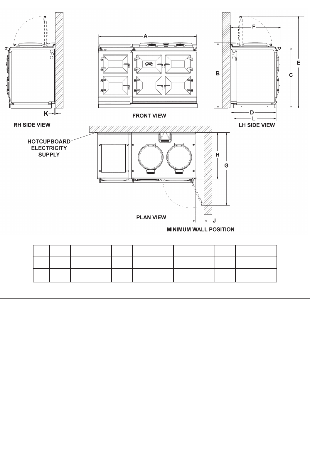
DESN
516561
A
B
C
D
E
F
G
H
J
K
L
mm
1478
951
913
680
1388
760
1
145
698
1
16
10
634
ins
58
1
/
4
37
1
/
2
36
26
3
/
4
54
5
/
8
29
7
/
8
45
1
/
8
27
1
/
2
4
9
/
16
3
/
8
25
AGA
TC5/DC5
-
RANGE
DIMENSIONS
Fig.
1
1
1
...
...
10
11
12
13
14
15
...
16