Installation guide
Manuals
Brands
AGA Manuals
Other
ADC3PROS
1
2
3
4
5
6
7
8
9
10
8
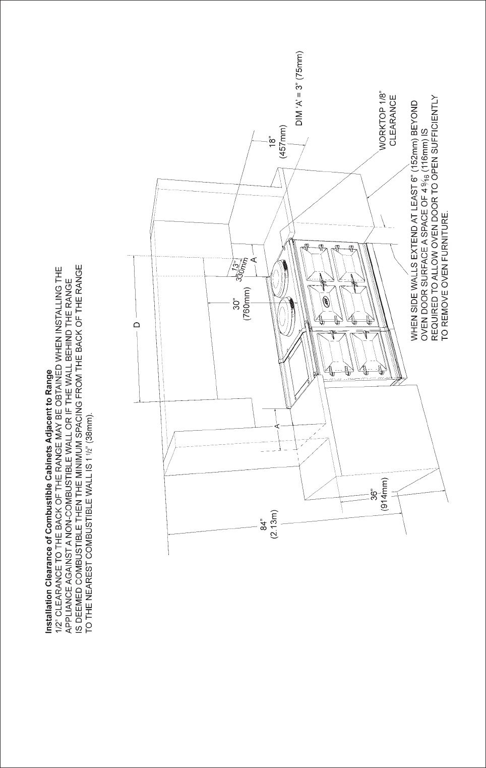
NOTE:
ANY OVERHEAD FITTED
CABINETS MUST NOT EXCEED 13ā
PROJECTED DEPTH ABOVE THE
RANGE.
DIM āDā TO BE NOT LESS THAN THE
NORMAL WIDTH OF THE RANGE.
Fig. 2
DESN 516668
1
...
...
6
7
8
9
10
...
...
28