Installation guide

5
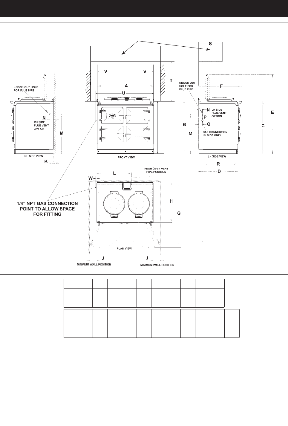
APPLIANCE DIMENSIONS - AGA DC3G
Fig. 1 DESN 516847 A
Range Dimensions
When surveying for a range installation the actual clearance required for the ‘body’ of the appliance should
be increased by 3/8” beyond the figures quoted above. This allows safe margin to take into account the
natural dimensional variations found in major castings. In particular the width across the appliance recess
could be critical.
APPLIANCE WEIGHT (Excludes Packaging)
Model: AGA Dual Control (DC3G) - 996lb (452kg)
GAS CONNECTION - AGA DC3G ONLY
1/4” NPT MALE AT LEFT REAR OF APPLIANCE
NOTE: GAS CONNECTION POINT PROTRUDES
A B C D E F G H J K
mm 987 951 913 680 1388 760 1145 698 116 10
inch
38
7
/8 37
1
/2 36 26
3
/4 54
5
/8 29
7
/8 45
1
/8 27
1
/2 4
9
/16
3
/8
L M N P Q R S T U V W
mm 565 689 43 118 55 634 330 760 996 75 9
inch
22
1
/4 27
1
/8 1
3
/4 4
5
/8 2
1
/8 25 13 30 39
3
/16 3
3
/8
OVERHEAD
CUPBOARDS










