Installation Guide
Manuals
Brands
AGA Manuals
Cooking Appliances
39 Inch Freestanding Dual Fuel Range with 2 Element Burners, Triple Oven, 4.5 Cu. Ft. Total Capacity, Manual Clean, Boiling Plate, Simmering Plate, Roasting Oven, Baking Oven, Slow Cook Oven, and 10 Cooking Methods: Salcombe Blue
1
2
3
4
5
6
7
8
9
10
8
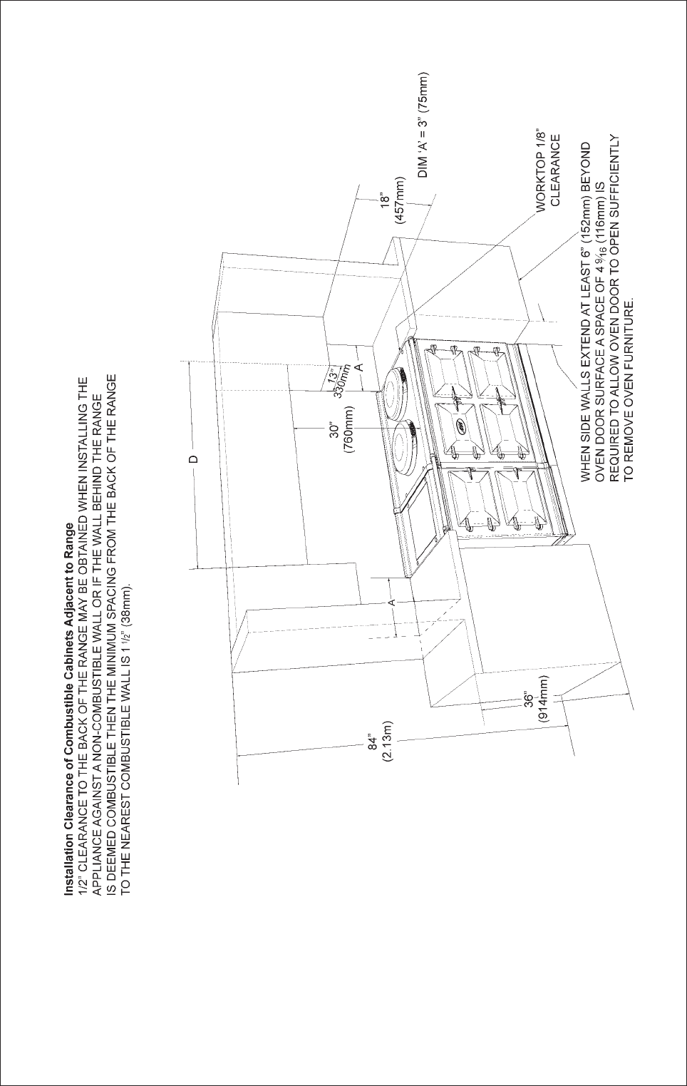
NOTE:
ANY OVERHEAD FITTED
CABINETS MUST NOT EXCEED 13ā
PROJECTED DEPTH ABOVE THE
RANGE.
DIM āDā TO BE NOT LESS THAN THE
NORMAL WIDTH OF THE RANGE.
Fig. 2
DESN 516668
1
...
...
6
7
8
9
10
...
...
28