Installation Instructions

HNSW Series LED Outdoor Wall Sconce
Model: HNSW20045LRTS 120VAC / 60Hz
8060644 R2
1
of
1
Limited Factory Warranty
American Fluorescent Corporation warrants this fixture is free from defects in materials and workmanship when installed and used under normal operating conditions
for a period of 2 years from date of purchase. This warranty covers all component parts and extends only to replacement of defective fixture or components; it does
not cover failure due to improper installation, misuse, mishandling or damage incurred in transit
Safety Precautions
Read all safety precautions and installation instructions carefully before
installing or servicing this fixture. Failure to comply with these
instructions could result in potentially fatal electric shock and/or
property damage.
It is recommended that a qualified electrician perform all wiring. This
fixture must be wired in accordance with all national and local
electrical codes.
Do not handle any energized fixture or attempt to energize any fixture
with wet hands or while standing on a wet or damp surface or in water.
This fixture is designed for use in a 110-120VAC, 60Hz fused circuit.
Do not use on a dimming circuit.
To reduce the risk of electrical shock, and to assure proper operation,
this fixture must be adequately grounded. To accomplish proper
grounding, there must be a separate ground wire (green) contact
between this fixture and the ground connection of your main power
supply panel.
This fixture is intended to be used for general outdoor lighting in wet
locations, mounted at least 4’ above the ground.
ASSEMBLY INSTRUCTIONS
1. Preparing for installation
A. Disconnect electrical power at fuse or circuit breaker box before installing or servicing any part of this fixture.
B. Carefully remove the fixture from the carton, and check that all parts are included, as shown in figure below. Be careful not to misplace any of
the screws or parts which are needed for installing the fixture.
2. Wiring-all wiring must take place inside junction box.
Caution: Make sure power is off at fuse or circuit breaker box. Check power wires for damage or scrapes. If power supply wires are within three inches
of the ballast power supply, use wire suitable for at least 90C (194F). Note: Most dwellings built before 1985 have supply wire rated to 60C. Consult a
qualified electrician before installing.
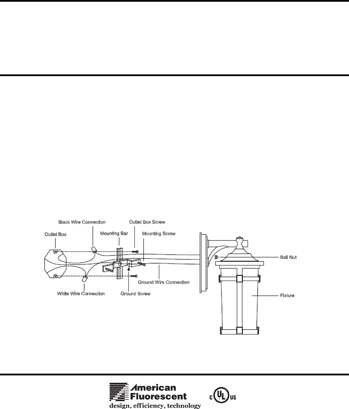
A. Thread the 2 mounting screws to the mounting bar. (You can adjust the length of the screws if necessary)
B. Attach the mounting bar to the outlet box by using 2 outlet box screws.
Note: If a 4” square junction box is used. Then a square to round flat converter must be placed to accept the gem bar provided.
C. Make all wire connections to appropriate wire. Secure with wire nuts (included).
D. The black wire from the fixture is connected to the black wire from power source.
E. The white wire from the fixture is connected to the white (neutral) wire from power source.
F. Tuck all connections neatly into junction box.
3. Mounting
A. Attach the fixture to the mounting bar by inserting the 2 mounting screws, and then secure with the 2 ball nuts (included).
4. Restore power at fuse or circuit breaker box.

