Datasheet
Manuals
Brands
AFC Manuals
TVs & monitors
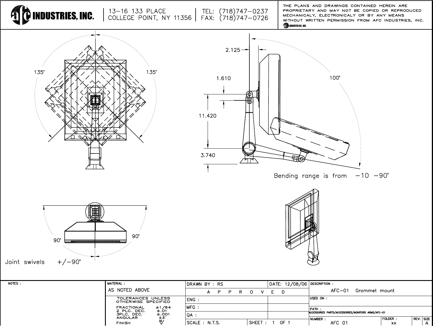
AFC-01
1
1
Summary of content (1 pages)
PAGE 1