Manual
Table Of Contents
- Table of Contents
- Foreword
- CHAPTER 1 - SAFETY PRECAUTIONS
- CHAPTER 2 - INSTALLATION
- CHAPTER 3 - CONTROL PANEL OPERATING PROCEDURES
- CHAPTER 4 - INITIAL START-UP
- CHAPTER 5 - MODE OF OPERATION
- CHAPTER 6 - SAFETY DEVICE TESTING
- CHAPTER 7 - MAINTENANCE
- CHAPTER 8 - TROUBLESHOOTING GUIDE
- CHAPTER 9 - RS232 COMMUNICATION
- APPENDIX A - BOILER MENU ITEM DESCRIPTIONS
- APPENDIX B - STARTUP, STATUS AND FAULT MESSAGES
- APPENDIX C - TEMPERATURE SENSOR RESISTANCE CHART
- APPENDIX D - INDOOR/OUTDOOR RESET RATIO CHARTS
- APPENDIX E - BOILER DEFAULT SETTINGS
- APPENDIX F - ASSEMBLY DRAWINGS
- APPENDIX G - PIPING DIAGRAMS
- APPENDIX H - WIRING DIAGRAMS
- APPENDIX I - RECOMMENDED PERIODIC CHECK LIST
- APPENDIX J - CONTROL PANEL VIEWS
- APPENDIX K - RECOMMENDED SPARE PARTS
- STANDARD WARRANTY

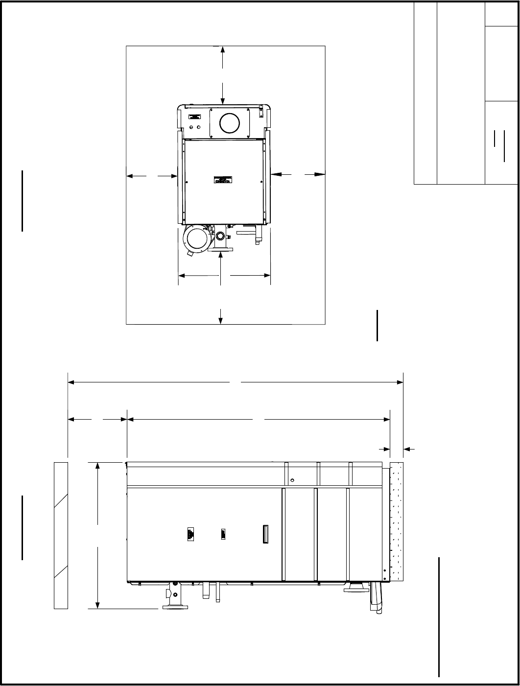
APPENDIX F
NOTES:
1) REAR CLEARANCE MAY BE REDUCED TO 30" DEPENDENT UPON
PIPING AND VENTING COMPONENT SELECTION, ARRANGEMENT,
AND LOCAL CODE REQUIREMENTS
REV
AERCO
INTERNATIONAL, INC.
NORTHVALE, NJ 07647
SD - A - 731
A
DRWN BY: SJD
DATE: 10/12/07
*NOT TO SCALE*
79"
18"
101"
44.5"
SIDE VIEW TOP VIEW
INSTALLATION CLEARANCES:
1) THIS APPLIANCE MAY BE INSTALLED ON COMBUSTIBLE FLOORING
2) MINIMUM CLEARANCES TO ADJACENT CONSTRUCTION ARE AS
FOLLOWS:
LEFT & RIGHT SIDES: 24"
FRONT: 24"
REAR: 42" *
CEILING HIEGHT: 101"
28"
BENCHMARK 1.5 LOW NOx
GAS FIRED BOILER
INSTALLATION CLEARANCES
24"
24"
REAR
FRONT
24"
42"*
F-4