Manual

APPENDIX F
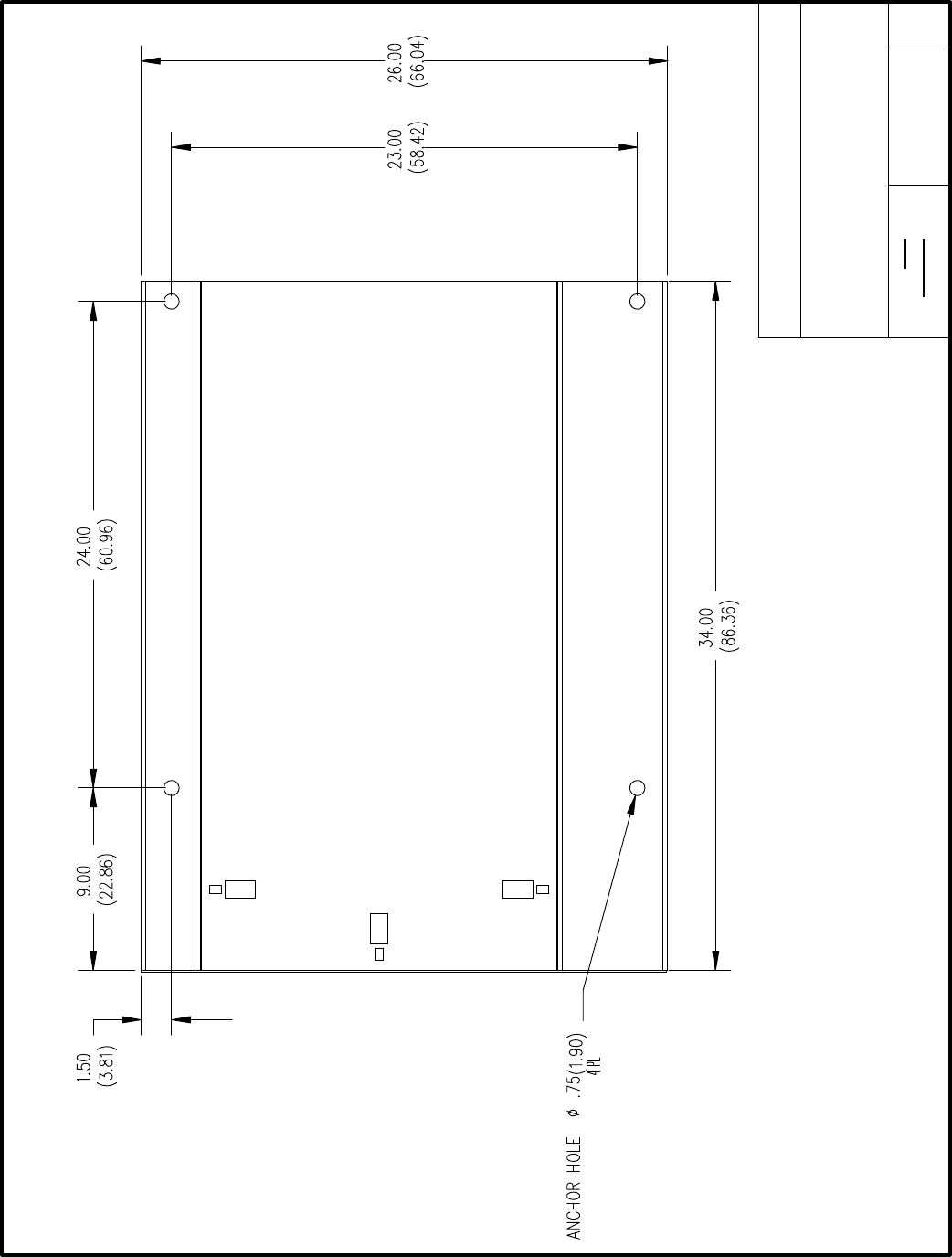
REAR
REV
AERCO
INTERNATIONAL, INC.
NORTHVALE, NJ 07647
BENCHMARK 1.5 LOW NOx
GAS FIRED BOILER
ANCHOR BOLT LOCATION
SD -A -730
A
DRWN BY:SJD
DATE:10/12/07
*NOT TO SCALE*
FRONT
NOTES:
1) ALL HOLES ARE FLUSH WITH THE BOTTOM SURFACE OF THE FRAME
2) ALL DIMENSIONS SHOWN ARE IN INCHES (CENTIMETERS)
F-2