Manual
Table Of Contents
- Table of Contents
- Foreword
- CHAPTER 1 - SAFETY PRECAUTIONS
- CHAPTER 2 - INSTALLATION
- CHAPTER 3 - CONTROL PANEL OPERATING PROCEDURES
- CHAPTER 4 - INITIAL START-UP
- CHAPTER 5 - MODE OF OPERATION
- CHAPTER 6 - SAFETY DEVICE TESTING
- CHAPTER 7 - MAINTENANCE
- CHAPTER 8 - TROUBLESHOOTING GUIDE
- CHAPTER 9 - RS232 COMMUNICATION
- APPENDIX A - BOILER MENU ITEM DESCRIPTIONS
- APPENDIX B - STARTUP, STATUS AND FAULT MESSAGES
- APPENDIX C - TEMPERATURE SENSOR RESISTANCE CHART
- APPENDIX D - INDOOR/OUTDOOR RESET RATIO CHARTS
- APPENDIX E - BOILER DEFAULT SETTINGS
- APPENDIX F - ASSEMBLY DRAWINGS
- APPENDIX G - PIPING DIAGRAMS
- APPENDIX H - WIRING DIAGRAMS
- APPENDIX I - RECOMMENDED PERIODIC CHECK LIST
- APPENDIX J - CONTROL PANEL VIEWS
- APPENDIX K - RECOMMENDED SPARE PARTS
- STANDARD WARRANTY

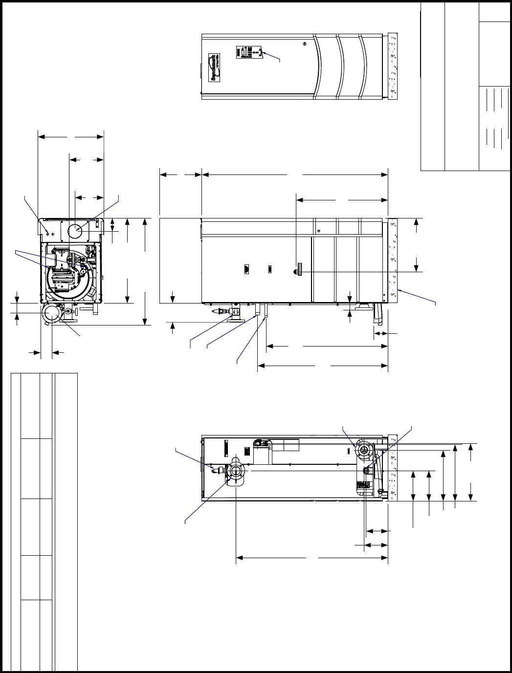
APPENDIX F
HEAT EXCHANGERS & COMBUSTION CHAMBER DESIGN STANDARDS
TEST PRESS.
ASME B & PV CODE: SECTION IV STAMP H (PRIMARY H.X.)
PRESS. (PSIG)
MAX. WORKING
160 210
TEMP. (°F)
240
(PSIG)
MAXIMUM
CAPACITY MBH
MIN. RELIEF VA.
110
SQ.FT.
1500
HT'G SURFACE
NORTHVALE, NJ 07647
DIMENSIONAL DRAWINGS
GAS FIRED BOILER
BENCHMARK 1.5 MIL. LOW NOx BTU
REV.DATE
CHKD. APPD.
JK
DWN.BY
SCALE
DATE
SIZE
A
101807
AERCO
B
AP-A-832
REV.
2) RELIEF VALVE, TRIDICATOR & CONDENSATE TRAP ARE INCLUDED SEPARATELY IN SHIPMENT.
1) ALL DIMENSIONS SHOWN ARE IN INCHES (CENTIMETERS).
NOTES:
SECTION VIII STAMP U (SECONDARY H.X.)
79-5/16
(201.4)
28 (71.1)
3/4" ELECTRICAL
CONDUIT CONNECTION
LIFTING LUGS
4-1/16
(12.2)
4-13/16 (12.2)
6" EXHAUST
OUTLET
6" AIR INLET
CONTROL
PANEL
DISPLAY
8-1/8
(20.6)
3 (7.6)
1-1/2" NPT NATURAL GAS
INLET CONN.
3/4" NPT GAS
VENT CONN.
FOR "IRI" GAS
TRAIN OPTION" ONLY
3"-150# FLG'D
COLD WATER
INLET CONN.
3"-150# FLG'D
HOT WATER OUTLET CONN.
5-11/16
(14.4)
12-1/4 (31.2)
51-7/8
(131.8)
55-1/2
(141.0)
36-1/4 (92.1)
5-15/16
(15.1)
12-15/16 (32.9)
21-11/16 (55.0)
12-7/8 (32.8)
24-9/16
(62.4)
24-1/8 (61.3)
10-3/8
(25.9)
9-15-/16
(23.6)
THIS AREA TO BE
ACCESSIBLE FOR
MAINTENANCE.
1-1/2" NPT
DRAIN CONN.
4" CONCRETE PAD - SET
UNIT FLUSH AT REAR
45-3/4 (116.2)
18 (45.7)
64-3/4
164.5)
PRESS. RELIEF VALVE
PRESS./TEMP. GAUGE
39-1/8
(99.4)
22-15/16
(58.2)
14-9/16
(37.1)
F-1