Manual
Table Of Contents
- Table of Contents
- Foreword
- CHAPTER 1 - SAFETY PRECAUTIONS
- CHAPTER 2 - INSTALLATION
- CHAPTER 3 - CONTROL PANEL OPERATING PROCEDURES
- CHAPTER 4 - INITIAL START-UP
- CHAPTER 5 - MODE OF OPERATION
- CHAPTER 6 - SAFETY DEVICE TESTING
- CHAPTER 7 - MAINTENANCE
- CHAPTER 8 - TROUBLESHOOTING GUIDE
- CHAPTER 9 - RS232 COMMUNICATION
- APPENDIX A - BOILER MENU ITEM DESCRIPTIONS
- APPENDIX B - STARTUP, STATUS AND FAULT MESSAGES
- APPENDIX C - TEMPERATURE SENSOR RESISTANCE CHART
- APPENDIX D - INDOOR/OUTDOOR RESET RATIO CHARTS
- APPENDIX E - BOILER DEFAULT SETTINGS
- APPENDIX F - ASSEMBLY DRAWINGS
- APPENDIX G - PIPING DIAGRAMS
- APPENDIX H - WIRING DIAGRAMS
- APPENDIX I - RECOMMENDED PERIODIC CHECK LIST
- APPENDIX J - CONTROL PANEL VIEWS
- APPENDIX K - RECOMMENDED SPARE PARTS
- STANDARD WARRANTY

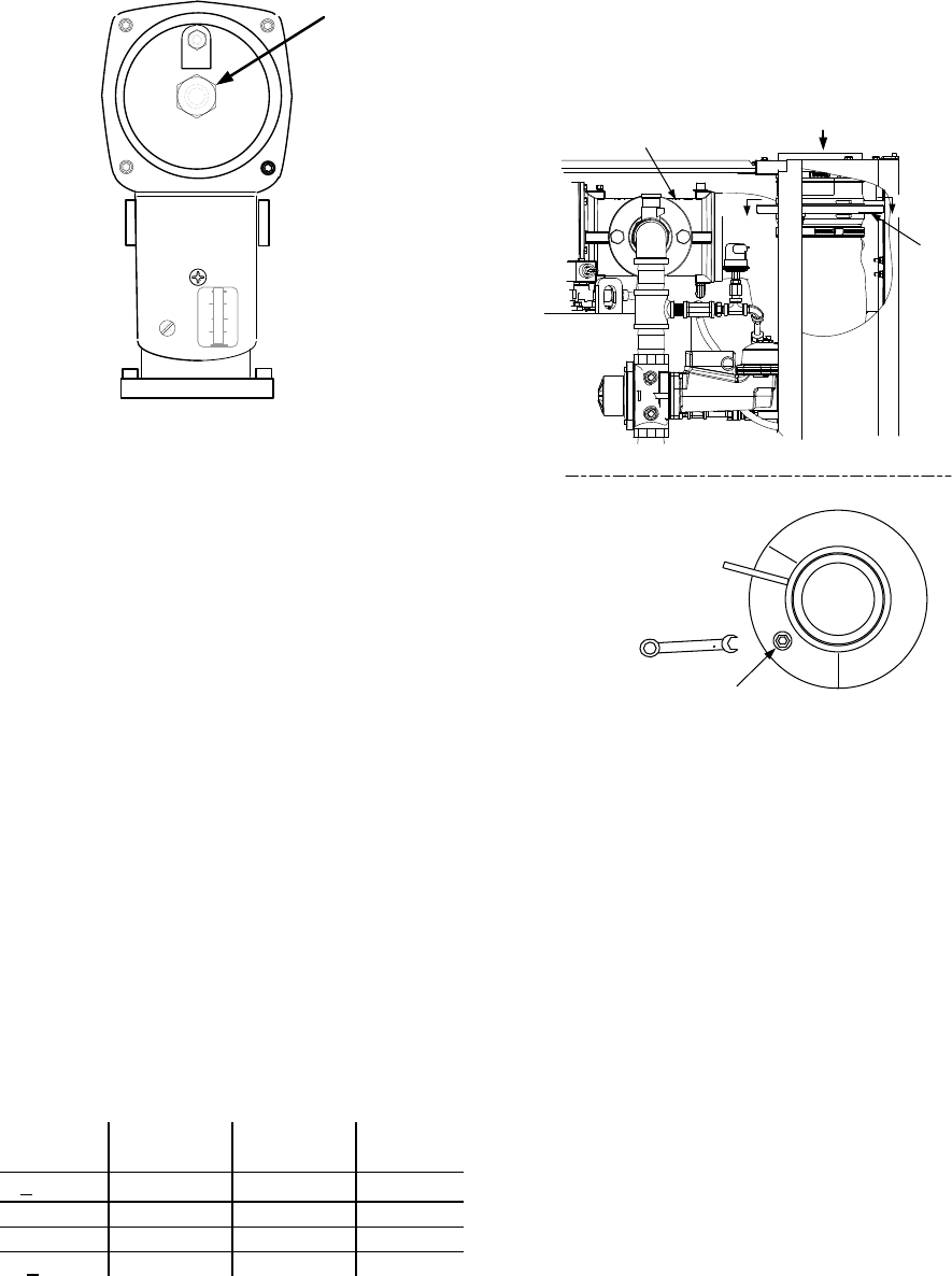
INITIAL START-UP
BRASS HEX
HEAD CAP
(REMOVE TO
ACCESS GAS
PRESSURE
ADJUSTMENT
SCREW)
TYPICAL SSOV ACTUATOR WITH REGULATOR
Figure 4-3
Gas Pressure Adjustment Screw
Location
11. Increase the valve open position to 100%
and verify that the gas pressure downstream
of the SSOV remains at 3” W.C. Readjust
pressure if necessary.
12. With the valve position at 100%, insert the
combustion analyzer probe into the flue
probe opening and allow enough time for the
combustion analyzer to settle.
13. Compare the measured oxygen level to the
oxygen range for the inlet air temperature
shown in Table 4-1. Also, ensure that the
carbon monoxide (CO) and nitrogen oxide
(NOx) readings do not exceed the values
shown.
Table 4-1
Combustion Oxygen Levels for a 100%
Air/Fuel Valve Position
Inlet Air
Temp
Oxygen %
± 0.2
Carbon
Monoxide
NOx
>100°F 4.8 % <100 ppm <30 ppm
90°F 5.0 % <100 ppm <30 ppm
80°F 5.2 % <100 ppm <30 ppm
<70°F 5.3 % <100 ppm <30 ppm
14. If necessary, adjust the iris air damper
shown in Figure 4-4 until the oxygen level is
within the range specified in Table 4-1.
15. Once the oxygen level is within the specified
range at 100%, lower the valve position to
80%.
USE 1/2"
WRENCH TO
INCREASE (CW)
OR DECREASE
(CCW) INLET AIR
IRIS ADJUSTMENT
VIEW A - A
AIR INLET
IRIS AIR
DAMPER
FRONT
A
A
AIR/FUEL
VALVE
Figure 4-4
Iris Air Damper Location/Adjustment
NOTE
The remaining combustion calibration
steps are performed using the
Combustion Cal Menu included in the C-
More Control System. The combustion
calibration control functions will be used
to adjust the oxygen level (%) at air/fuel
valve positions of 80%, 60%, 45%, 30%
and 16% as described in the following
steps. These steps assume that the inlet
air temperature is within the range of 50°F
to 100°F.
16. Press the MENU Key on the front panel of
the C-MORE and access the Setup menu.
Enter password 6817 and then press the
ENTER key.
17. Press the MENU Key on the front panel of
the C-MORE until Combustion Cal Menu
appears on the C-More display.
18. Press the ▲ arrow key until SET Valve
Position appears on the C-MORE display.
4-3