Manual
Table Of Contents
- Table of Contents
- Foreword
- CHAPTER 1 - SAFETY PRECAUTIONS
- CHAPTER 2 - INSTALLATION
- CHAPTER 3 - CONTROL PANEL OPERATING PROCEDURES
- CHAPTER 4 - INITIAL START-UP
- CHAPTER 5 - MODE OF OPERATION
- CHAPTER 6 - SAFETY DEVICE TESTING
- CHAPTER 7 - MAINTENANCE
- CHAPTER 8 - TROUBLESHOOTING GUIDE
- CHAPTER 9 - RS232 COMMUNICATION
- APPENDIX A - BOILER MENU ITEM DESCRIPTIONS
- APPENDIX B - STARTUP, STATUS AND FAULT MESSAGES
- APPENDIX C - TEMPERATURE SENSOR RESISTANCE CHART
- APPENDIX D - INDOOR/OUTDOOR RESET RATIO CHARTS
- APPENDIX E - BOILER DEFAULT SETTINGS
- APPENDIX F - ASSEMBLY DRAWINGS
- APPENDIX G - PIPING DIAGRAMS
- APPENDIX H - WIRING DIAGRAMS
- APPENDIX I - RECOMMENDED PERIODIC CHECK LIST
- APPENDIX J - CONTROL PANEL VIEWS
- APPENDIX K - RECOMMENDED SPARE PARTS
- STANDARD WARRANTY

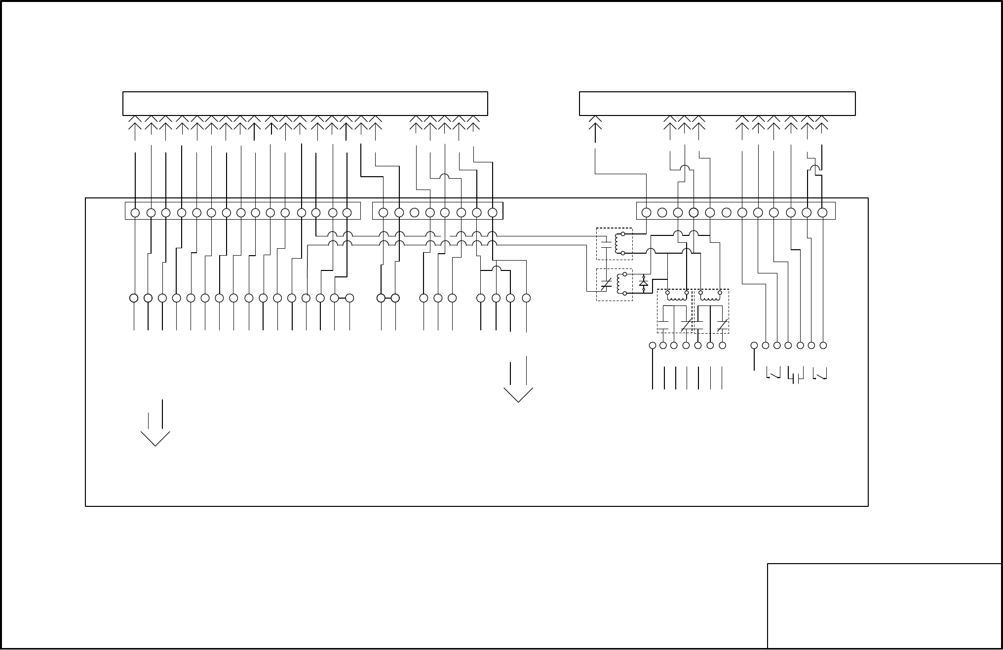
APPENDIX H
H-4
CONTROL BOX CONNECTORS
1210 11 13 14 1615 17 18 19 2120 22 23 24
24-PIN CONNECTOR
241
240 242
243
244
245 251
246 250
247
252 254
253
9687 5 4 3 12
212
220
221
211
219
16-PIN CONNECTOR
854679123 1116 1415 13 12 10
226
213
214
216
215
7
6
7
5
3
4
6
1
2
OUT
IN
OUT
IN
IN
OUT
FAULT
RELAY
NOT USED
DELAYED INTLK
EXHAUST TEMP
REMOTE INTLK
N.O.
C
4
3
5
1
2
NOT USED
N.C.
C
N.O.
N.C.
RELAY
AUX
12
13
14
11
SENSOR EXCIT. (12 VDC)
BMS (PWM) IN
ANALOG IN
OXYGEN SENSOR IN
FLOW SENSOR IN
CO SENSOR IN
+
-
-
+
-
+
-
+
AUX SENSOR IN
SENSOR COMMON IN
-
+
1
OUTDOOR AIR SENSOR IN
9
8
7
5
3
4
2
6
10
IN
GND
4
1
2
1
-
+
2
2
1
3
3
ANALOG OUT
15
16
SHIELD
B
RS-485 IN
A
12 437865 9 10 1211
87654321
876543211211109131415
231
234232
233
238236
235 237
239
INPUT/OUTPUT BOX
+
-
LS2 LS1
LS4
LS3
J3 J2
J1
ANALOG OUT
+
-
FROM AIR
TEMP SENSOR
TO BLOWER
0-10V
AGND
WIRING SCHEMATIC, BMK 1.5 LN IRI
120 VAC, 60 Hz
REF: 68030 REV. C (SHT. 2 OF 2)