User manual

• Prietaisas pristatomas su maitinimo
kabeliu. Prie jo reikia prijungti tinkamą
kištuką, pritaikytą galiai, nurodytai
techninių duomenų lentelėje. Būtinai
įkiškite kištuką į tinkamą lizdą.
• Visada naudokite taisyklingai įrengtą
įžemintą elektros lizdą.
• Įsitikinkite, kad, įrengus prietaisą, elek‐
tros laido kištuką lengva pasiekti.
• Norėdami išjungti prietaisą, netraukite
už elektros laido. Traukite paėmę už
kištuko.
• Kyla gaisro rizika, kai prietaisas pri‐
jungtas prie ilginamojo laido, adapterio
ar kelių lizdų įtaiso. Užtikrinkite, kad
įžemintas prijungimas atitiktų standar‐
tus ir taisykles.
• Neleiskite maitinimo laidui įkaisti iki
aukštesnės nei 90° C temperatūros.
Būtinai prijunkite mėlyną neutralų laidą
prie gnybto su „N“ raide. Prijunkite rudą
(arba juodą) fazės laidą prie gnybto su
raide „L“. Fazės laidas visada turi būti
prijungtas.
8.5 Maitinimo laido keitimas
Jeigu keičiate jungiamąjį kabelį, naudoki‐
te tik H05V2V2-F T90 arba ekvivalentiš‐
ko tipo kabelį. Naujasis kabelis būtinai
privalo atitikti maitinimo įtampą ir darbinę
temperatūrą. Geltonas / žalias įžeminimo
laidas privalo būti maždaug 2 cm ilges‐
nis už rudą (arba juodą) fazės laidą.
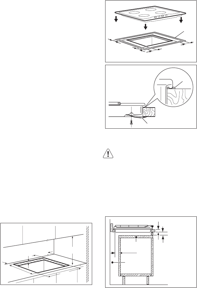
8.6 Įrengimas balduose
min.
55 mm
min.
650 mm
560 mm
480 mm
min.
450 mm
30 mm
10 mm
3 mm
11 mm
11 mm
A
A
B
A)
pateiktasis tarpiklis
B)
pateiktieji laikikliai
ATSARGIAI
Prietaisą įrenkite tik ant lygaus
paviršiaus stalviršio.
8.7 Įdėjimo galimybės
Virtuvės spintelė su durelėmis
Po virykle esančią plokštę turi būti leng‐
va nuimti ir lengva pasiekti viryklę, jeigu
prireiktų techninės pagalbos.
min 20 mm
(max 150 mm)
30 mm
60 mm
B
A
A)
Nuimama plokštė
B)
Tarpas jungtims
LIETUVIŲ 55