User manual

Asennus- ja liitäntäohje
41
Viemäriliitäntä
Poistoletku
1
Poistoletku ei saa olla taittunut, litistynyt tai mutkalla.
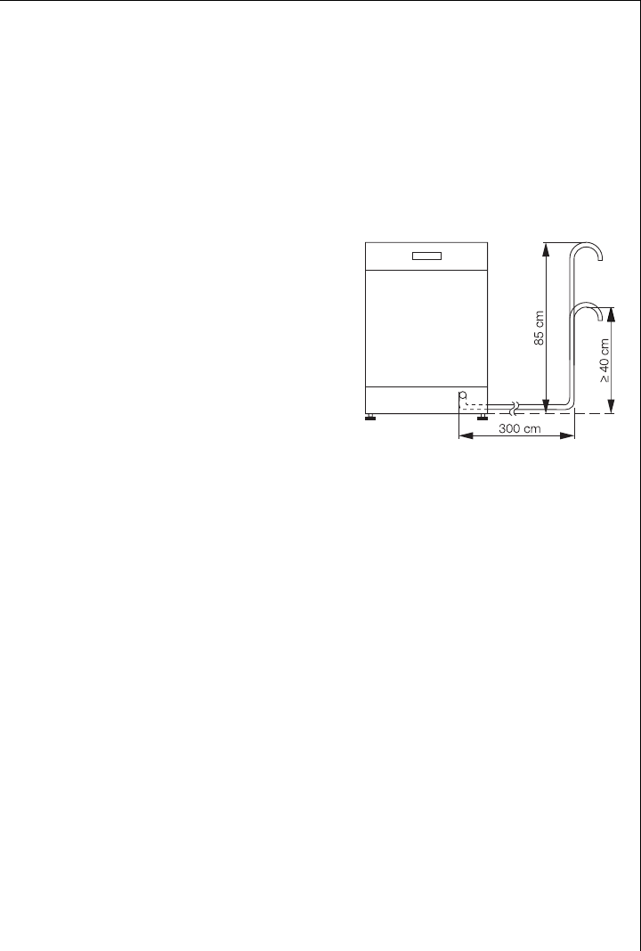
• Poistoletkun liitäntä:
– sallittu maksimikorkeus: 1 metri.
– vaadittu minimikorkeus 40 cm laitteen alareunasta.
Pidennysletkut
• Pidennysletkuja voit ostaa valtuu-
tetusta huoltoliikkeestä. Pidennys-
letkujen läpimitan on oltava
19 mm, jotta laitteen toiminta ei
häiriydy.
• Pisin sallittu letku on vaakatasossa
3 m, jolloin nostokorkeus on enin-
tään 85 cm.
Liitäntä pesualtaan viemäröintika-
lusteeseen
• Poistoletkunpää (ø 19 mm) sopii useimpiin viemäröintikalusteisiin.
Viemäriliitännän on oltava vähintään ø 15 mm.
• Poistoletku on kiinnitettävä viemäröintikalusteeseen mukana toimi-
tetun letkunkiristimen avulla.
Vedenpoisto sokkelin päälle kalusteeseen asennetussa astianpesu-
koneessa
Jos sokkelin päälle kalusteeseen asennetun astianpesukoneen poistolet-
kun liitäntä on alle 30 cm laitteen alareunan yläpuolella, tarvitaan val-
tuutetusta huoltoliikkeestä saatavilla oleva varaosa, ET 111099520.
Veden poisto tiskialtaaseen (mahdollista vapaasti sijoitettavien
laitteiden kohdalla)
Jos haluat ripustaa poistoletkun tiskialtaaseen, käytä letkun mutkaput-
kea. Voit ostaa tämän valtuutetusta huoltoliikkeestä; varaosan numero
on ET 646 069 190.
0 1. Laita mutkaputki poistoletkuun.
2. Varmista poistoletku niin, ettei se pääse luiskahtamaan pois tiskialtaan
reunalta.
Vedä narua mutkaputken reiän läpi ja kiinnitä seinään tai vesihanaan.










