User`s manual

Table Of Contents
Chapter 1 General Information 7
Operating temperature: 0 ~ 60° C (32 ~ 140° F)
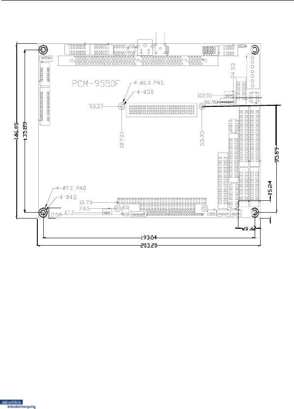
Size (L x W): 203 mm x 146 mm (8" x 5.75")
Weight: 0.7 kg (1.54 lb) (weight of total package)
1.4 Board layout and dimensions
Figure 1-1: PCM-9550 dimensions