Work Table with Sink Spec Sheet

www.advancetabco.com
Customer Service Available To Assist You 1-800-645-3166 8:30 am - 8:00 pm E.S.T.
For Orders & Customer Service:
Email: customer@advancetabco.com or Fax: 631-242-6900
For Smart Fabrication™ Quotes:
Email: smartfab@advancetabco.com or Fax: 631-586-2933
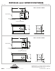
Choose Left or Right Sink Position
STAINLESS STEEL
TABLE WITH SINK
REF-O
FEATURES:
Top is furnished with 1 5/8” sanitary rolled rim edge on front and
square sides, and a 5” splash with a 1” return on the rear side.
THREE hat channels stud welded to reinforce and maintain a level
working surface.
Pre-engineered welded angle adapters insure ease of future
drawer installation.
Aluminum die cast “leg-to-shelf” clamp secures shelf to leg
eliminating unsightly nuts and bolts. Undershelf is adjustable.
Stainless steel 16” x 20” x 12” deep drawn sink bowl
integrally welded to top.
K-50 Deck Mounted Faucet included.
CONSTRUCTION:
All TIG welded. Exposed weld areas polished to match
adjacent surfaces.
Entire top mechanically polished to a satin finish.
Top is sound deadened.
Roll formed embossed galvanized hat channels are secured to
top by means of structural adhesive and weld studs.
Gussets welded to support hat channels.
MATERIAL:
TOP is 16 gauge stainless steel type “304” series.
SHELF is 18 gauge stainless steel type “430” series.
LEGS are 1 5/8” diameter, tubular stainless steel with
stainless steel gussets and 1” adjustable stainless steel bullet feet.
Featuring as Standard:
“THE PROVEN”
ORIGINAL ADVANCE TABCO
Adjustable Undershelf
with Die Cast Leg Clamp
KMS-11B-305L
KMS-11B-305R
KMS-11B-306L
KMS-11B-306R
Model # Length
Weight
30”X60”
30”X60”
30”X72”
30”X72”
140 lbs.
140 lbs.
165 lbs.
165 lbs.
Rolled Rim Edge on
Front & Square
Edges on Side & Back
KMS-11B-305R Shown
Item #: Qty #:
Model #:
Project #:
Bullet Feet

Summary of content (2 pages)