User Guide
Table Of Contents

ACR ELECTRONICS INC.
SHEET
ACR PART NUMBER
5757 Ravenswood Road
Fort Lauderdale, FL 33312
-2-
2628
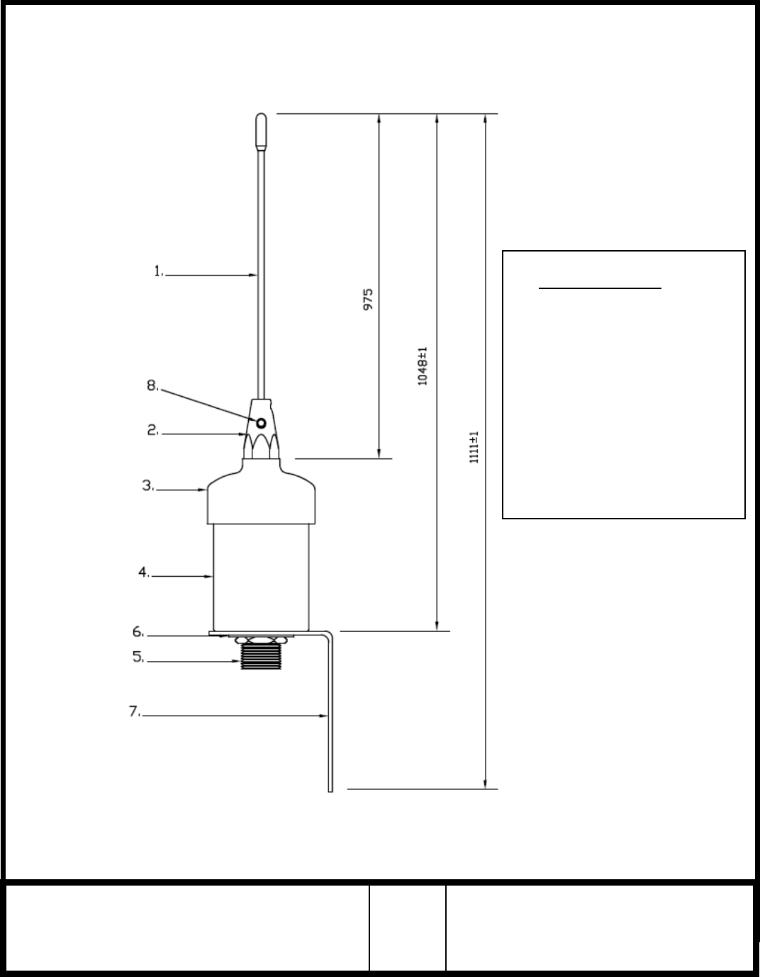
Antenna Dimension and Part Description:
Part Descriptions:
1.) Antenna Whip
2.) Base of whip
3.) Coil housing cover – White
nylon.
4.) Coil housing – Aluminum
White.
5.) Antenna Connector – SO-
239, female.
6.) Locking washer and nut.
7.) Mounting bracket
8.) Set screw x2.










