Operating Instructions and Installation Instructions

77
AZWG10000
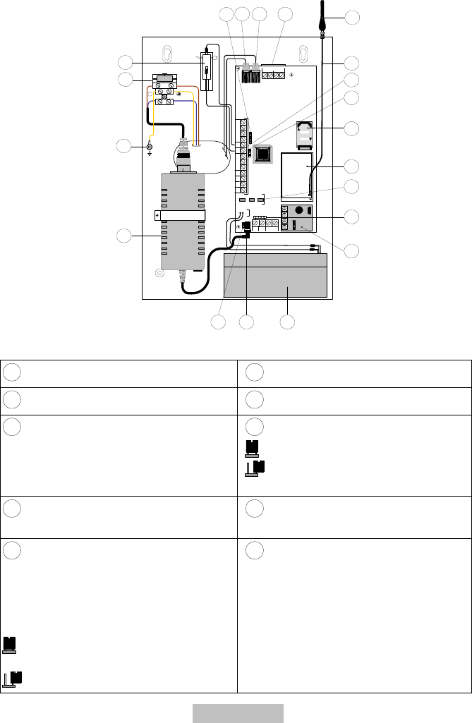
6. Aanduiding van de componenten
BUS
+12 V
GND
LOCK
OPEN
RED
BLK
YEL
GRN
LD1 LD3 LD2
1
L. BA T
GSM
POWER
J14
1234 C
PLAY REC
4
8
9
10
11
12
13
14
15
16
1718
19
20
3
765
NL
2
FUSE: T 0.5A 250V
100-200V~50/60Hz
MAX:0.4A
J15
J13
COMINPUT TMP
N.C N.O
UØ1 UØ2 UØ3 UØ4 AUX
SETLINE
PHONE
1
Sabotagecontact (NC)
11
GSM module
2
Zekering (T 250 V/0,5 A)
12
Houder voor de SIM kaart
3
Aardaansluiting
13
J13: jumper voor sabotage
= geen sabotagebericht
= sabotagebericht
(fabrieksinstelling)
4
Netvoeding (230 V/14,5 V DC; 0,8 A)
14
Aansluitklemmen (zie 9.2
Aansluiting)
5
J14: jumper voor bescherming tegen
diepontlading van de accu. Wanneer de
stroomvoorziening via de netvoeding
uitvalt, wordt de noodstroomaccu van het
apparaat bij een minimale spanning van
10,5 V automatisch afgekoppeld.
= geen bescherming tegen
diepontlading
= bescherming tegen diepontlading
15
GSM antennekabel










