Operating Instructions and Installation Instructions

53
AZWG10000
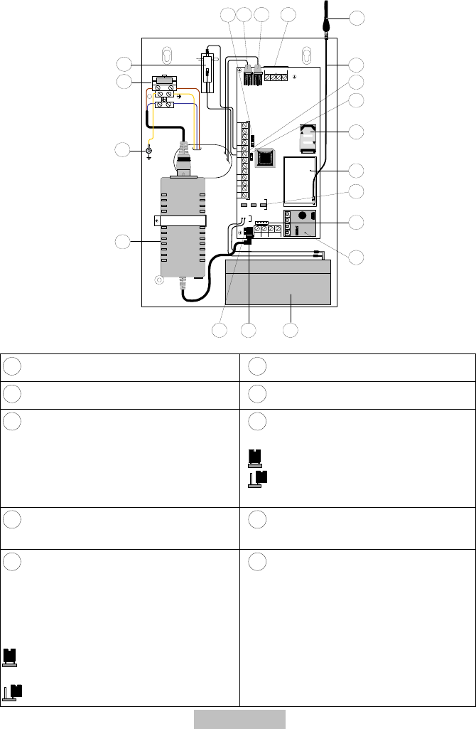
6. Dénomination des composants
BUS
+12 V
GND
LOCK
OPEN
RED
BLK
YEL
GRN
LD1 LD3 LD2
1
L. BAT
GSM
POWER
J14
1234 C
PLAY RE C
4
8
9
10
11
12
13
14
15
16
1718
19
20
3
765
NL
2
FUSE: T0.5A 250V
10 0-200V ~50/ 60 Hz
MAX:0.4A
J15
J13
COMINPUT TMP
N.C N .O
UØ1 UØ2 UØ 3 UØ4 AUX
SETLINE
PHONE
1
Contact de sabotage (NC)
11
Module GSM
2
Fusible (T 250 V/0,5 A)
12
Tiroir pour carte SIM
3
Boulon de mise à la terre
13
J13: pont enfichable pour
sabotage
= pas d’avertissement de sabotage
= avertissement de sabotage
(préréglage)
4
Alimentation (230V/14,5 V DC; 0,8 A)
14
Bornes de raccordement (voir 9.2
Câblage)
5
J14: pont enfichable pour protection
contre décharge totale de la batterie. Si
l’alimentation électrique ne fonctionne
plus, la batterie de secours est
automatiquement déconnectée sous une
limite de 10,5 V.
= pas de protection contre décharge
totale
= protection contre décharge totale
15
Câble d’antenne GSM










