Owner manual
Manuals
Brands
AAEON Manuals
Hardware
PCM-5895 Rev.B
11
12
13
14
15
16
17
18
19
20
Table Of Contents
PCM-5895B Ch1-0804.pdf
General
System
Display: Supports CRT/LCD Simultaneous display
I/O
PCM-5895 QIG Rev.B 1st Ed-0804.pdf
Function
JP6
Function
JP7
Function
Function
Function
Function
Function
JP13
Function
JP17
Function
JP18
Function
Signal
Signal
Signal
Signal
J1/P1
A
B
J2/P2
D
C
Signal
Signal
DIO Address is 801H
Signal
PCM-5895B ch3-0804.pdf
Load Fail-Safe Defaults
PCM-5895B-ch4-0729.pdf
Driver
Win XP / Win XPe VGA
Win XP / Win XPe AES
Win XP / Win XPe System
Win XP / Win XPe Audio
PCM-5895B Appendix C Mating Connector-0730.pdf
E-Call
Compact Board
PCM-5895 Rev.B
Chapter 2 Q
uick Inst
allat
ion Guide
2-
5
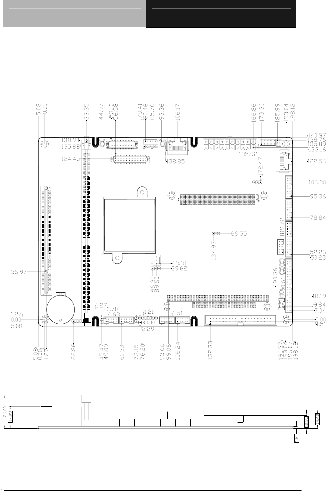
2.3 Mechanical Drawing
Component Side
1
...
...
16
17
18
19
20
...
...
72